277㎡五居现代简约风格龙湖世纪峰景
发布时间:
2019年01月19日
小区:龙湖世纪峰景 面积:277㎡ 户型:五居 风格:现代简约风格
设计说明
室内大面积的落地窗,使空间通透自然,穿插原木色,让整个家里充满温馨感。整体以极简白为基调,采用大理石、黑色与木纹不同材质的转换,实现客厅、餐厅与西厨的相承相依,低调而内敛又不失沉静悠然。
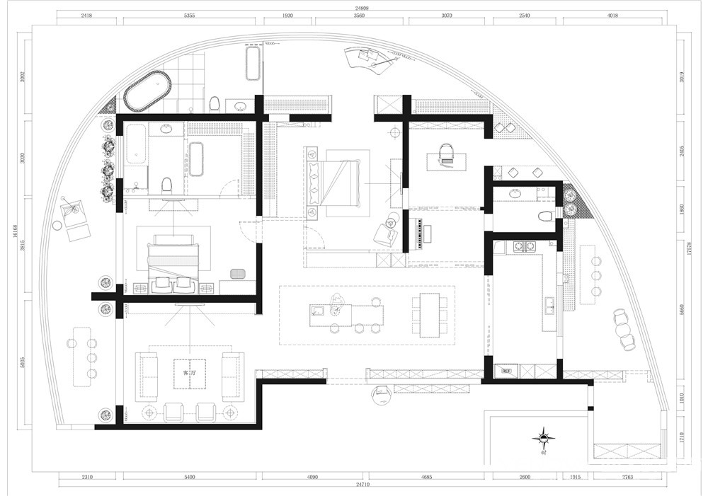
户型图

休闲区

客厅




儿童房

室内大面积的落地窗,使空间通透自然,穿插原木色,让整个家里充满温馨感。整体以极简白为基调,采用大理石、黑色与木纹不同材质的转换,实现客厅、餐厅与西厨的相承相依,低调而内敛又不失沉静悠然。






