328㎡四居轻奢风格蓝山美墅
发布时间:
2019年01月19日
小区:蓝山美墅 面积:328㎡ 户型:四居 风格:轻奢风格
设计说明
设计师说明:明与暗、需与实。设计师采用大面积灰色大理石配上明度相对明快的木色调点缀空间,使得整个空间轻松、简明、随和、温馨、时尚。粗矿纹理的家具配上现代的餐椅让空间别有一番品味。这些丰富了空间色彩层次,彰显了设计师追求细节品质,使得空间温馨但是又不失时尚和品味。
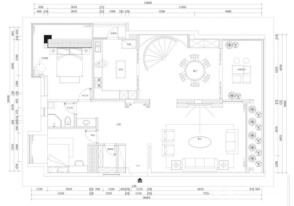
户型图

休闲区

卧室


卫生间

客厅




餐厅

书房





京公安网备11010502040911