101㎡三居现代简约风格双铁广场
发布时间:
2019年01月19日
小区:双铁广场 面积:101㎡ 户型:三居 风格:现代简约风格
设计说明
本案为现代风格装修作品,夫妻二人,有一对可爱的双胞胎,父母前期会过来帮忙带小孩儿,考虑到这些因素,保留了原户型的三个卧室,儿童房使用高低床;夫妻二人都喜欢简单的东西,所以推荐了他们装现代风格,整个装修摒弃了多余的装饰,以实用为主,尽量增加多的储物功能。
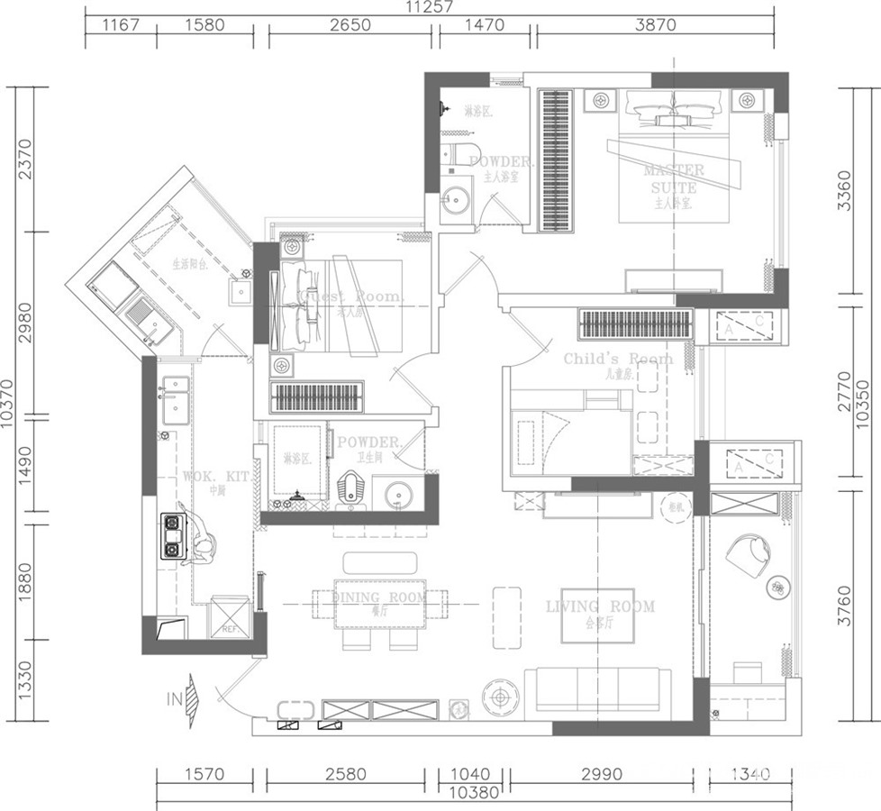
户型图

卧室


客厅






京公安网备11010502040911