170㎡四居新中式风格金地南湖艺境
发布时间:
2018年11月28日
小区:金地南湖艺境 面积:170㎡ 户型:四居 风格:新中式风格
设计说明
绿植是新中式风格中不可或缺的元素,除了绿萝、凤尾竹、滴水观音等观叶植物,树雕、盆景等也是不错的选择。新中式风格不是纯粹的元素堆砌,而是通过对传统文化的认识,将现代元素和传统元素结合在一起,以现代人的审美需求来打造富有传统韵味的事物,让传统艺术在当今社会得到合适的体现。
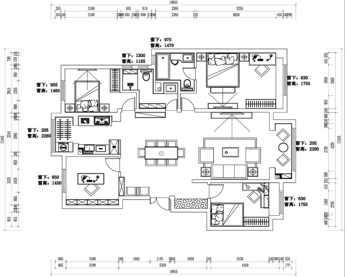
户型图

餐厅

客厅


卫生间

卧室





京公安网备11010502040911