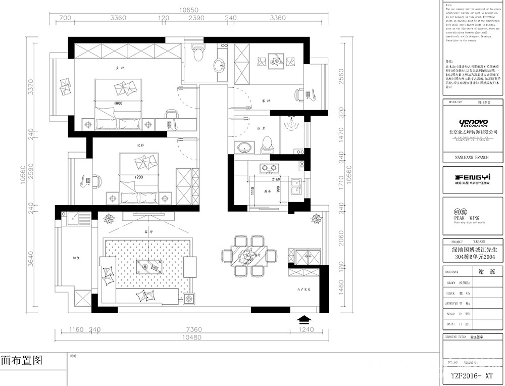
115㎡三居现代简约风格绿地国际博览城
发布时间:
2018年11月16日
小区:绿地国际博览城 面积:115㎡ 户型:三居 风格:现代简约风格
设计说明
本案的居家格调整体定位为灰白色调的简约现代,简洁,干练,让家中呈现一种自然的舒适。浅色的地板砖,温馨的暖色墙面,映衬着深木色木门及装饰柜与原木家具。冷暖相间,不同质感和形象的点光源在不同的空间相互穿插使用。整体设计洋溢着现代风情。色泽自然而富有灵性,整体设计洋溢着现代风情。
户型图

客厅




餐厅

卧室





京公安网备11010502040911