80㎡三居现代简约风格万达文化旅游城
发布时间:
2018年11月16日
小区:万达文化旅游城 面积:80㎡ 户型:三居 风格:现代简约风格
设计说明
本案的设计重点是空间的实用性,从设计手法上采用了从墙面上的线与面的衔接呼应,以及顶面的空间的虚拟划分,达到各功能空间融会贯通的目的。简洁、温馨的极少主义在本案中得到了淋漓尽致的体现。
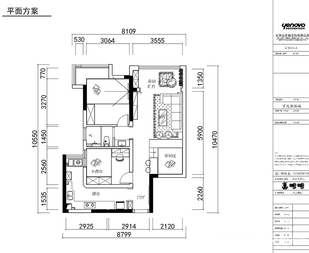
户型图

客厅




餐厅

本案的设计重点是空间的实用性,从设计手法上采用了从墙面上的线与面的衔接呼应,以及顶面的空间的虚拟划分,达到各功能空间融会贯通的目的。简洁、温馨的极少主义在本案中得到了淋漓尽致的体现。





