118㎡三居现代简约风格新希望锦官阁
发布时间:
2018年08月22日
小区:新希望锦官阁 面积:118㎡ 户型:三居 风格:现代简约风格
设计说明
新希望·锦官阁精品设计案例:本案将客户喜欢的一切融入装修,雾霾蓝的墙面,搭上灰色大理石地砖,错杂地铺排,亮点是家具和空间色彩,强烈的混搭感和时尚感呼之欲出,居家环境简洁个性,舒适放松,没有过多的堆砌和造型,由此在设计上主要通过材质和色调来营造一个时尚简洁舒适的居家氛围,开放式厨房大胆解放了原有厨房狭小的空间,从而使整个客餐厅宽敞明亮。
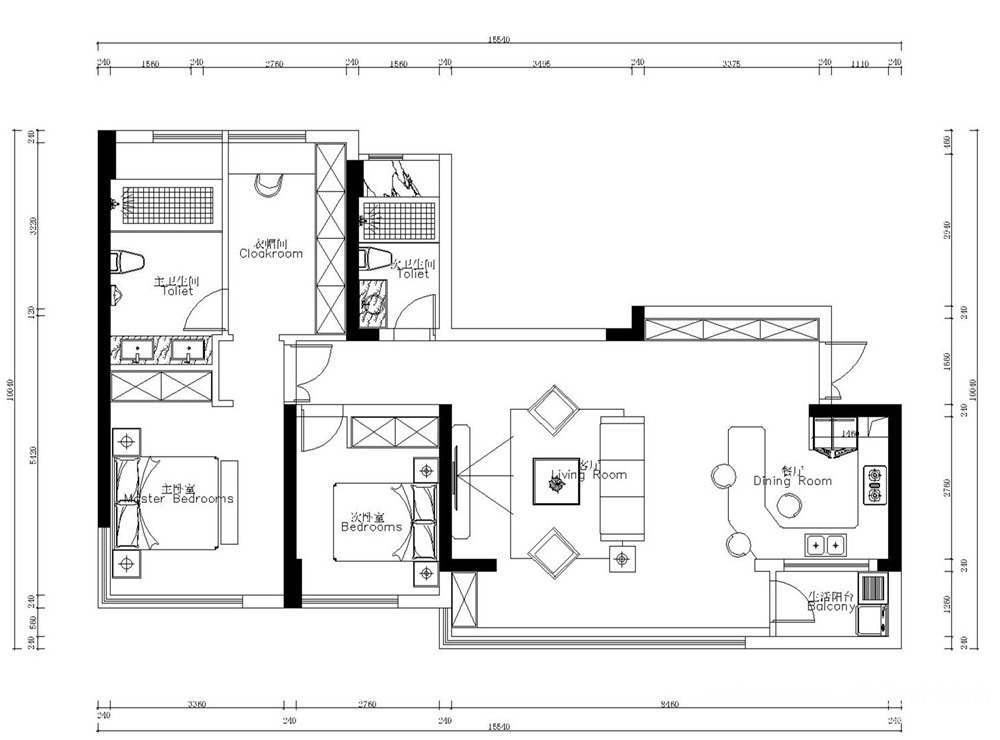
户型图

卧室

客厅







京公安网备11010502040911