90㎡三居美式风格凯德世纪名邸
发布时间:
2018年08月22日
小区:凯德世纪名邸 面积:90㎡ 户型:三居 风格:美式风格
设计说明
凯德世纪名邸一期精品设计案例:业主是一对80后的小夫妻,喜欢简约、温馨,整个空间以浅灰和卡布基洛色为主色调,营造静谧而又温馨的气氛。本案将简约融入美式,营造出一种独特而不张扬的平衡之美。空间中反复出现的几何线条,看似简单却有着不简单、轻奢的韵味。
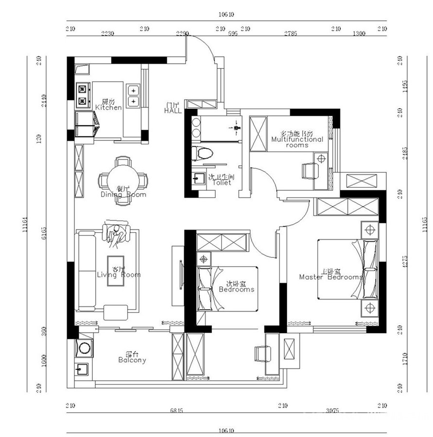
户型图

客厅


卫生间

卧室





京公安网备11010502040911