100㎡二居现代简约风格融侨锦江
发布时间:
2018年08月05日
小区:融侨锦江 面积:100㎡ 户型:二居 风格:现代简约风格
设计说明
简约就是简单而有品味,这种品味体现在设计上的细节的把握,每一个细小的局部和装饰都要深思熟虑。在施工上更要求精工细作,是一种不容易达到的效果,简约不等于简单,简约是用简洁的手法体现平面的尺度,空间感。
本案是家里子女为长辈准备的住房,之前一家人声过在一起,有一个正在上小学的孩子,希望有一个单独的
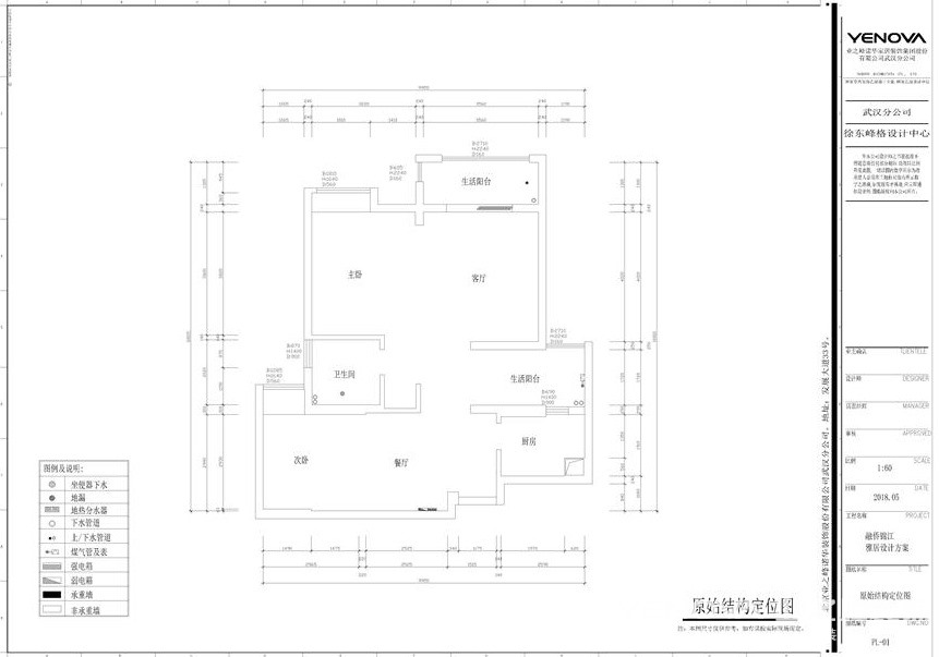
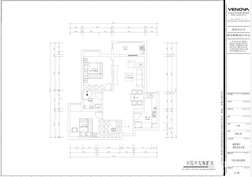
户型图

客厅




餐厅

卧室


卫生间

厨房





京公安网备11010502040911