100㎡二居现代简约风格社会山
发布时间:
2018年08月05日
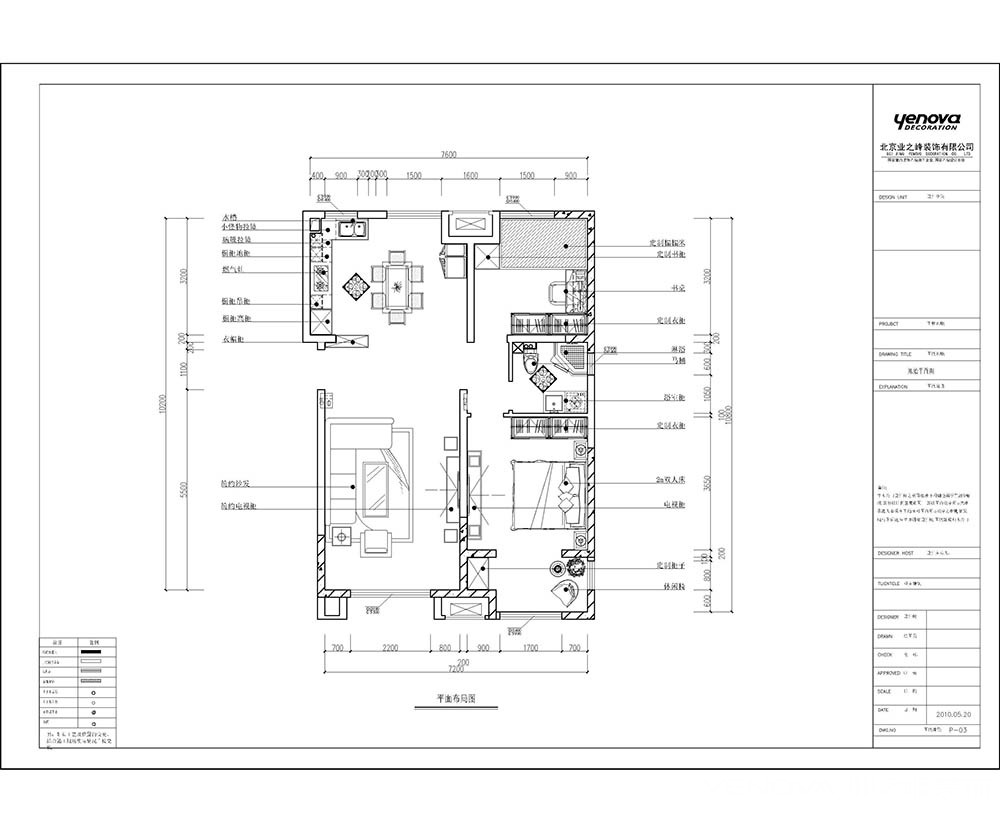
小区:社会山 面积:100㎡ 户型:二居 风格:现代简约风格
设计说明
简约的风格起源于德国。简约的真谛在于满足基础功能的前提上尽量的简单化,简约风格设计最初是为了世界大战过后国家经济萧条的因素,后来这种风格得到了人们的推崇。现在的简约风格简单而具有品味,细节上的把握是非常重要。简洁的表现形式来满足人们对空间环境的情感、本能和理性的需求,现代简约风格非常讲究的室内空间的哲学和材料的渗透性。简约不等于简单。简约是经过深思熟虑过后经过创新设计得出的思路延展。简约风格设计不仅仅体现在装修上,另一部分还体现在家具配饰的搭配好。
户型图

客厅



休闲区

餐厅

卧室





京公安网备11010502040911