104㎡三居保利华庭
发布时间:
2018年02月21日
小区:保利华庭 面积:104㎡ 户型:三居 风格:
设计说明
简约、沉稳是本案设计的核心理念。美式简约的风格不需要太多的花样和复杂的色系,而是主张淳朴简约,强调一种心神的回归。摒弃一切繁琐和奢华,去掉零碎的空间划分,去掉堆砌的颜色和摆设,去掉繁复设计的家具,但整个空间看起来,却又简而不凡。业主可以在快节奏的忙碌之后,回到属于自己的一方天地,在这里,连呼吸都变得平稳且轻松。客厅和餐厅的设计,都只为营造出一种舒适、大方的居家氛围。
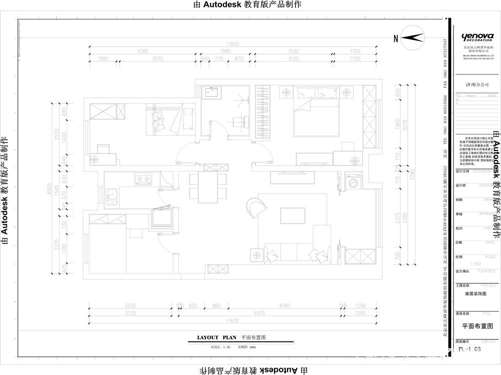
户型图

休闲区

儿童房

卧室

客厅




餐厅





京公安网备11010502040911