125㎡三居现代简约风格保利华庭
发布时间:
2018年02月21日
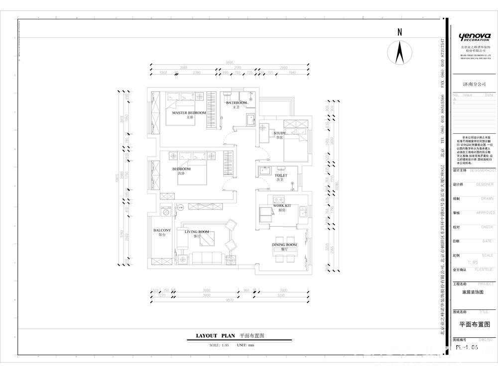
小区:保利华庭 面积:125㎡ 户型:三居 风格:现代简约风格
设计说明
现代简约风格,顾名思义,就是让所有的细节看上去都是非常简洁的。装修中极简便是让空间看上去非常简洁,大气。装饰的部位要少,但是在颜色和布局上,在装修材料的选择配搭上需要费很大的劲,这是一种境界,不是普通设计师能够设计出来的。无疑,现代简约风格的装修风格迎合了年轻人的喜爱,都市忙碌生活,早已经让我们烦腻了花天酒地,灯红酒绿,我们更喜欢的一个安静,祥和,看上去明朗宽敞舒适的家,来消除工作的疲惫,忘却都市的喧闹。这也是现在流行的装修风格之一:现代简约风格。
户型图

卧室


客厅




餐厅

阳台





京公安网备11010502040911