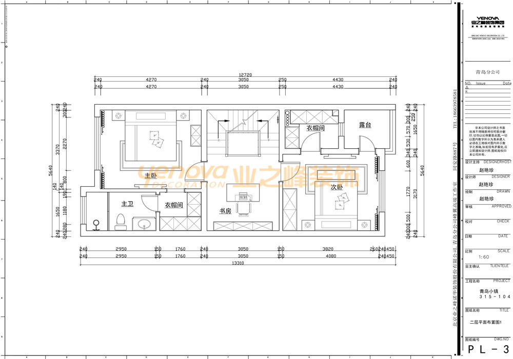
320㎡别墅万科青岛小镇
发布时间:
2018年01月20日
小区:万科青岛小镇 面积:320㎡ 户型:别墅 风格:
设计说明
本方案位于青岛市青岛小镇,房子为多层框架结构,建筑面积320平米,户型结构为别墅。
本案的设计风格为新中式,营造格调高雅,造型朴素优美,色彩浓厚而成熟是本案的主题。
本案的设计重点是会客空间与各个空间空间互通与交流,从设计手法上采用了简洁的形式以暖色为家庭主色调,以及顶面的空间的划分,使各功能空间及融会贯通又各具功能。雅致、温馨的舒适感觉在本案中得到了淋漓尽致的体现。
门厅、餐厅、客厅及过道的设计也是考虑到空间的划分以及空间的连续性。既考虑到既能划分空间,又保留各自的独立性,更要空间的连贯性。卧室的设计也是通过应用了壁纸,石膏线等材质,体现了新中式的风格。
素色的墙纸、明亮的天花在深色地板的映衬下营造的是痛快、利落、干净的氛围。吊灯,壁灯,和吊顶筒灯带来的光源效果让就餐的气氛温馨了许多。中式风格设计说明了社会的进步,结合了现代人的生活方式,开拓出一个属于他们的风格。80后作为社会的中流砥柱更多的装修户型图 
客厅



餐厅


卧室

书房





京公安网备11010502040911