130㎡平层美式风格丽都国际
发布时间:
2018年01月20日
小区:丽都国际 面积:130㎡ 户型:平层 风格:美式风格
设计说明
效果图说明:
1.简约美式风格沿袭传统中式风格的主元素,融入了现代的生活元素。中式的居室有的不只是深沉大气,传统与新中式的差别在于一个复杂一个简单化。同样讲究空间层次感,在传统的审美观念上新中式又得到了新的诠释,将有形的隔断化作无形,让家具散发出自身的韵味足以。
2.卧室看出主人性格沉稳,吊灯与床头和造型的相互陪衬,予人现代感而又高贵得体。主卧和次卧用了两个不同的色调,委婉的进行功能性的划分,但又不失舒适和温馨.电视背景墙运用木质线条框,里面满贴壁纸,外摆放植物、电视、电视柜等配饰,使电视背景墙既不复杂反而简洁大方。彰显出一番更为大气的华丽。
3.客餐厅及走廊地面跟顶面的搭配彰显出空间的立体,新中式大气、更贴近于自然。这种风格从整体到局部、从空间到室内陈设塑造,精雕细琢,给人一丝不苟的印象。整个空间色彩纯粹,搭配温馨大气。在传统中式风格的基础上,以简约的线条代替复杂的花纹,采用更为明快清新的颜色,既保留了传统中式的浓厚底蕴,又更适应现代生活的悠闲与舒适。<
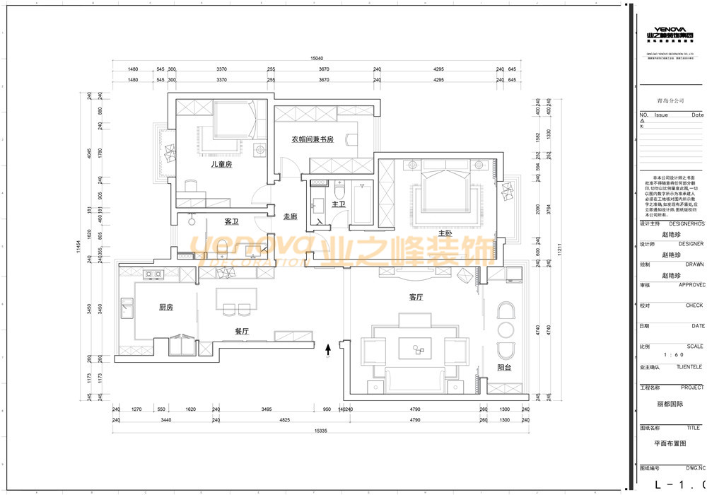
户型图

客厅




餐厅





京公安网备11010502040911