420㎡别墅宋氏美学锦江天玺
发布时间:
2025年10月30日
小区:锦江天玺 面积:420㎡ 户型:别墅 风格:宋氏美学
设计说明
本案以新中式风格为设计核心,将传统东方美学与现代生活理念深度融合,打造兼具文化底蕴与时代感的雅致空间。
设计以“自然共生,意境留白”为理念,运用水墨纹理、青瓷摆件等经典元素勾勒空间骨架,同时融入金属线条、智能照明等现代工艺,形成刚柔并济的视觉层次。
色彩上以胡桃木色为基底,搭配烟灰蓝与月白色软装,营造沉稳而不失灵动的氛围;
布局上借鉴中式园林“移步换景”的巧思,通过开放式客餐厅与透景隔断的穿插,实现功能分区与光影流动的平衡。
家具选择注重线条的简洁流畅,以改良圈椅、博古架等符号化物件传递文化认同,辅以抽象山水画与枯枝造景,在虚实相生中诠释“少即是多”的东方哲学,最终呈现一个既承载千年文脉,又契合当代生活方式的理想居所。
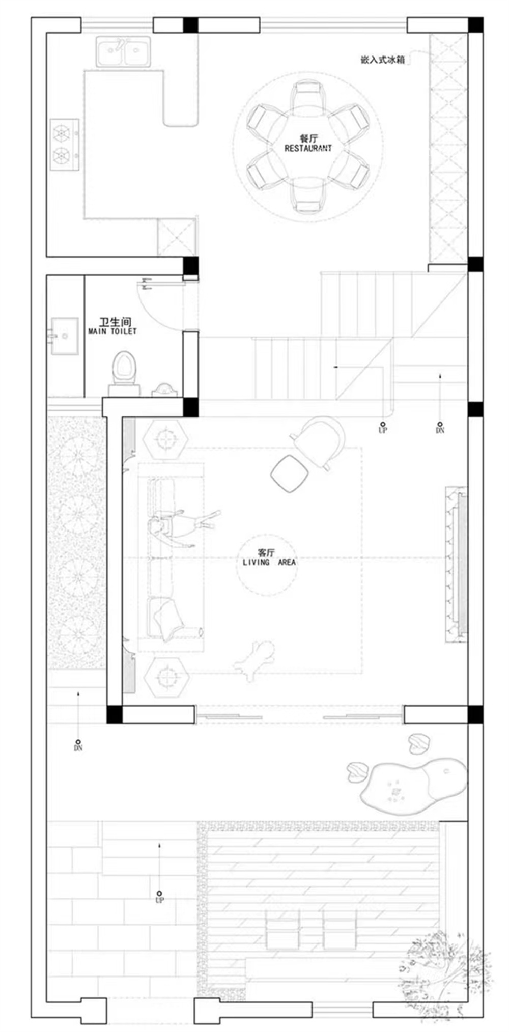
户型图



主卧室



卧室



卫生间


餐厅



衣帽间

客厅





厨房

休闲区


楼梯





京公安网备11010502040911