450㎡别墅振业泊墅
发布时间:
2017年12月01日
小区:振业泊墅 面积:450㎡ 户型:别墅 风格:
设计说明
本方案为四口之家和一保姆居住,主要风格是以中式风格为主。中式风格非常讲究空间的层次感,在需要隔绝视线的地方,则使用中式的屏风或窗棂、中式木门、工艺隔断、简约化的中式“博古架”,通过这种新的分隔方式,单元式住宅就展现出中式家居的层次之美。再以一些简约的造型为基础,添加了中式元素,使整体空间感觉更加丰富,大而不空、厚而不重,有格调又不显压抑。设计师以现代的装饰手法和家具,结合古典中式的装饰元素,来呈现亦古亦今的空间氛围。中式风格的古色古香与现代风格的简单素雅自然衔接,使生活的实用性和对传统文化的追求同时得到了满足。
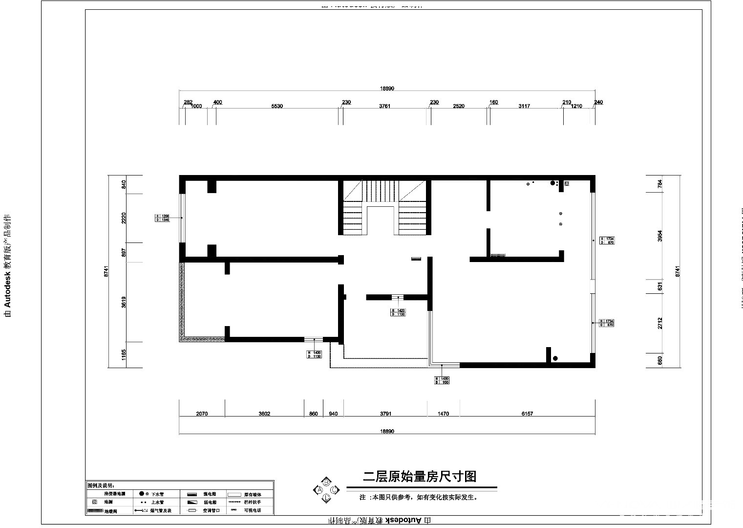
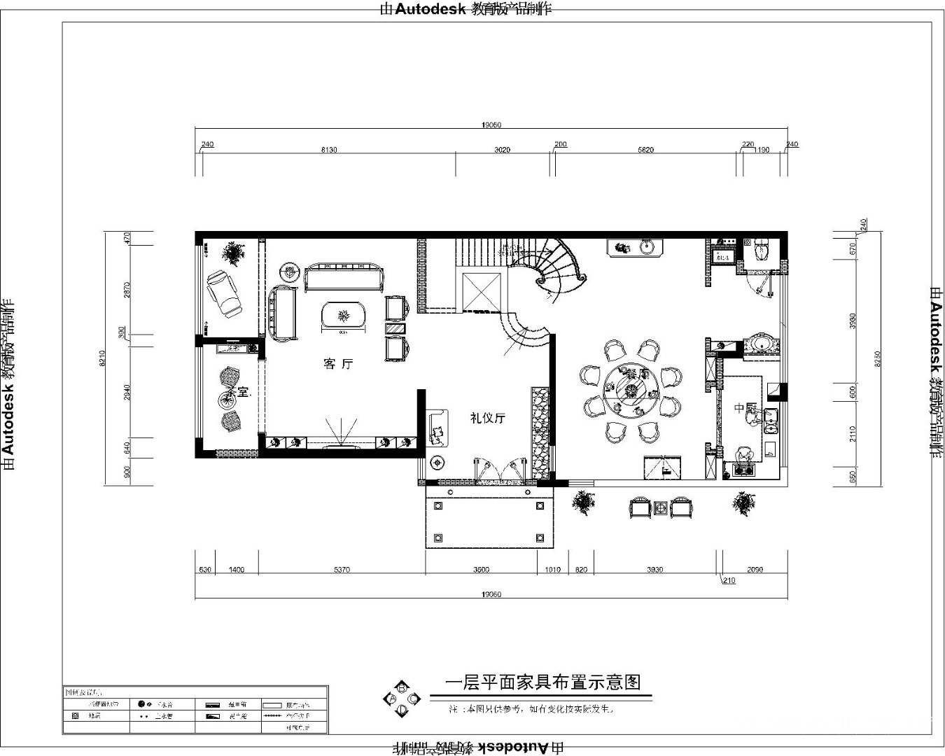
户型图

客厅













书房


休闲区


卧室

玄关






京公安网备11010502040911