300㎡别墅现代简约风格恒大世纪城
发布时间:
2025年10月15日
小区:恒大世纪城 面积:300㎡ 户型:别墅 风格:现代简约风格
设计说明
恒大世纪城现代简约设计说明:该设计以现代简约风格为核心,通过简洁的线条、纯
净的色调与实用的布局,去除冗余装饰,营造出通透、舒适且极具质感的居住空间;
同时融入极简主义美学,让功能与形式完美契合,展现出简约而不简单的生活格调。
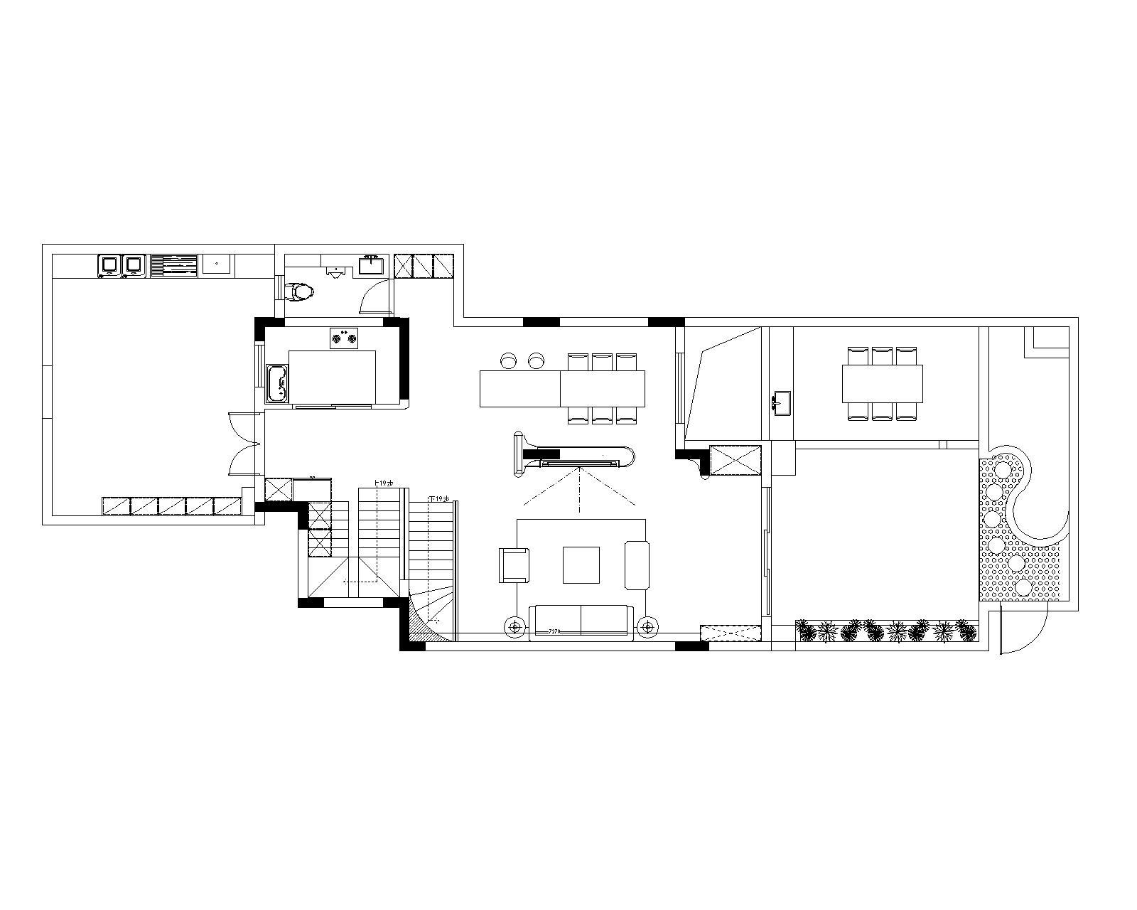
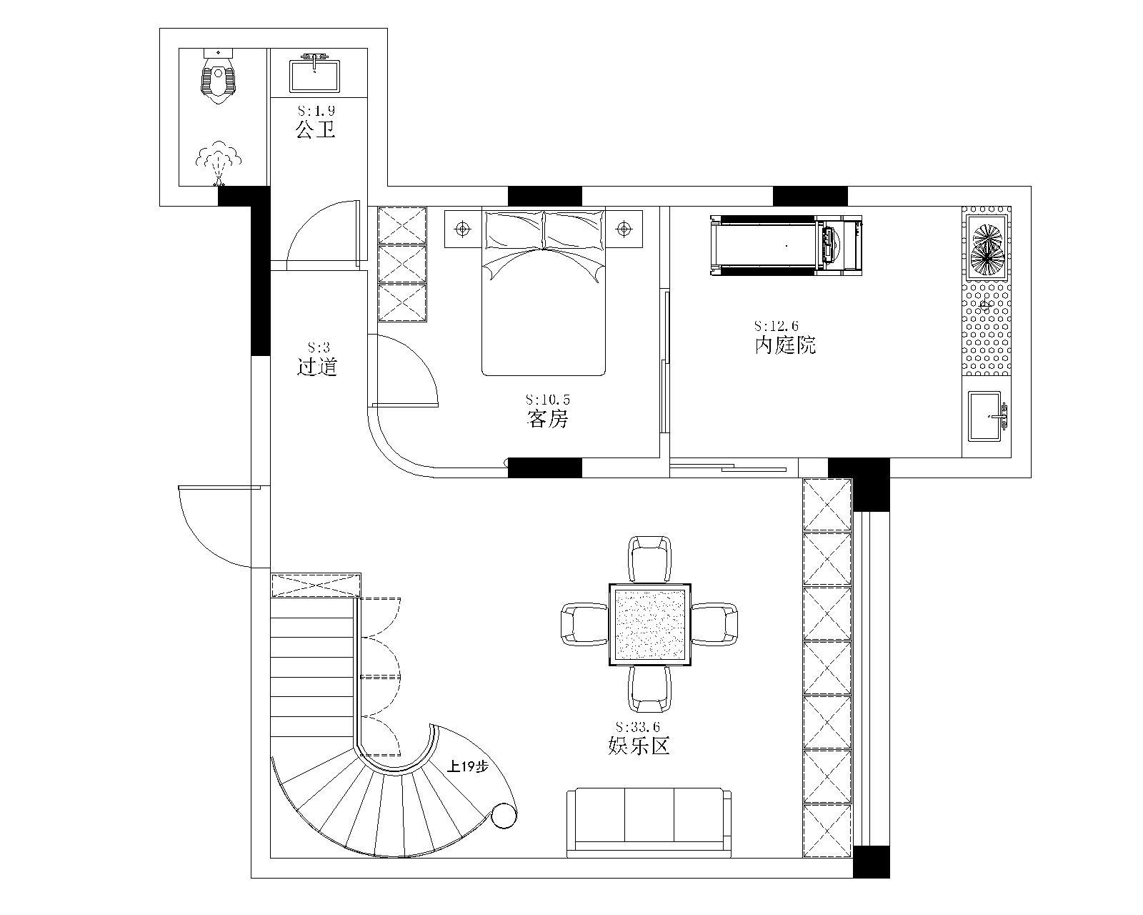
户型图



卧室


客厅



玄关

休闲区





京公安网备11010502040911