127㎡二居现代简约风格河畔新世界
发布时间:
2017年07月22日
小区:河畔新世界 面积:127㎡ 户型:二居 风格:现代简约风格
设计说明
本方案在整体设计上主要是以现代的装饰手法,整个空间层次分明,整体明亮、简单时尚又不缺乏温馨与大气。现代设计中处处透露着简约而不简单,简约并不是缺乏设计要素,它是一种更高层次的创作境界。在室内设计方面,不是放弃原有建筑空间的规矩和朴实,去对建筑载体进行任意装饰。而是在设计上更加强 调功能,强调结构和形式的完整,更追求材料、技术、空间的表现深度与精确。用简约的手法进行室内创造,它更需要设计师具有较高的设计素养与实践经验在家具配置上,白亮光系列家具,独特的光泽使家具倍感时尚,具有舒适与美观并存的享受。在配饰上,延续了黑白灰的主色调,以简洁的造型、完美的细节,营造出时尚前卫的感觉
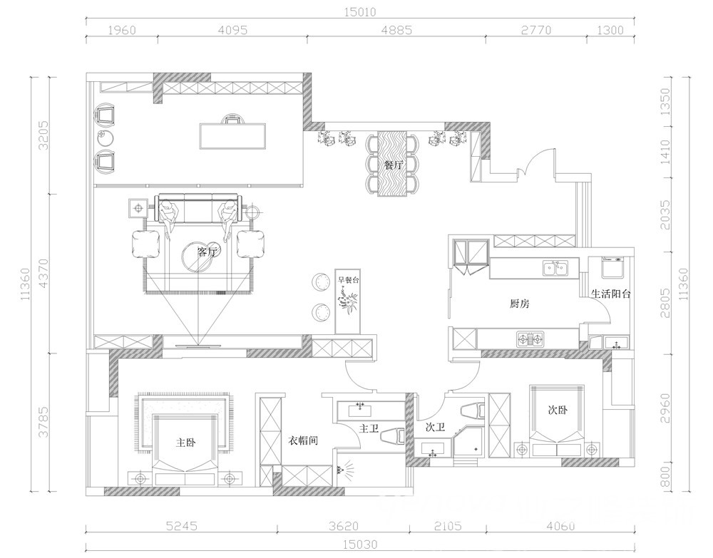
户型图

卧室

客厅







京公安网备11010502040911