138㎡三居现代简约风格铁西金地檀府
发布时间:
2017年06月24日
小区:铁西金地檀府 面积:138㎡ 户型:三居 风格:现代简约风格
设计说明
本案的设计风格为美式风格,主在营造典雅,自然,高贵的气质,浪漫的情调。打通南北的阳台扩充室内面积,打造成半开放式的厨房和客厅,厨房是比较西式的,餐厅中间的圆桌选择也是业主非常喜欢的设计。客厅选择风格明显的沙发,都是暖色调,但颜色的变化多样,让美式的风格洋溢典雅气息,满足居住的所有要求。
房间的整体吊顶是一大特色,立体几何形状,加上工装的射灯,不仅起到隔断功能,也增加了层高,使得空间更加立体饱满。餐厅、电视背景墙还有玄关,都布置了不同的灯,与墙面装饰画结合成新的图案。
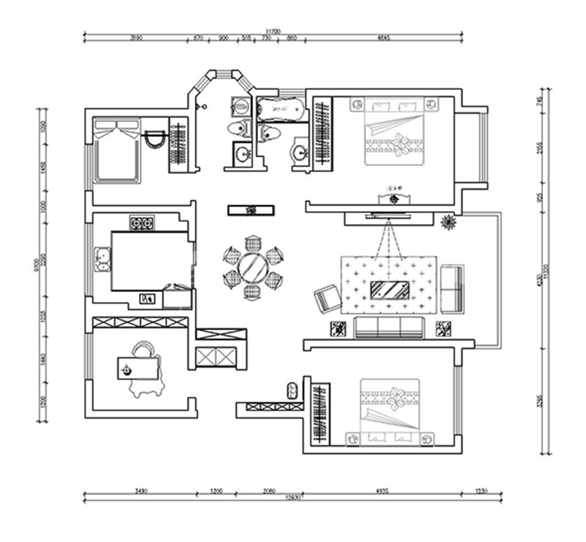
户型图

客厅




卧室

书房

餐厅





京公安网备11010502040911