47㎡一居现代简约风格珊顿道
发布时间:
2017年06月27日
小区:珊顿道 面积:47㎡ 户型:一居 风格:现代简约风格
设计说明
本方案为现代风格,由于原来的空间已经比较紧张,所以在客户也很满意的情况下将两室一厅改为了一室一厅,并且都是开放式设计,起居室和客厅用不同的地面材质来分割。
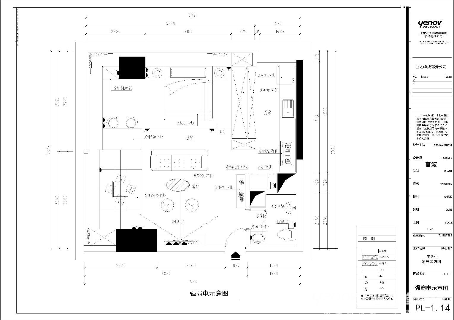
户型图

客厅



衣帽间

本方案为现代风格,由于原来的空间已经比较紧张,所以在客户也很满意的情况下将两室一厅改为了一室一厅,并且都是开放式设计,起居室和客厅用不同的地面材质来分割。




