130㎡二居现代简约风格中海明珠
发布时间:
2017年06月13日
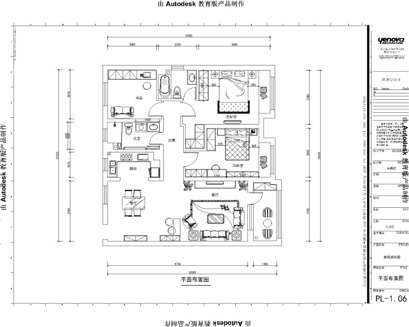
小区:中海明珠 面积:130㎡ 户型:二居 风格:现代简约风格
设计说明
设计说明;本案设计为简约风格,整体感觉简约大气。墙面搭配暖黄色的壁纸,背景墙简约而又带设计感,客厅吊棚层次分明功能分区明确,整体家具现代浅色为主,线条为直线,简约,便于打理。设计以少胜多,以简胜繁。复合现代人的生活品味
户型图

玄关

客厅





书房

卧室





京公安网备11010502040911