70㎡二居现代简约风格三和温泉公寓
发布时间:
2017年04月27日
小区:三和温泉公寓 面积:70㎡ 户型:二居 风格:现代简约风格
设计说明
本方案采用的是现代北欧风格。
简约主义体现了一种生活概念,既简单又高贵。实用就好,小而实用。现在流行有玻璃与金属组合的极简约主义设计,更体现出极简约主义风格的时尚品质。用很少的装饰营造出美的家居环境,简化室内装饰要素,可使人视觉开阔,让空间中的重点之处富有活力。
北欧简约主义表现为线条利落简洁 ,色彩多为单色,材质更多样化,线条与颜色简单,但简约风格多功能可不简单。每一物件都强调相对与人的机理功能学和贮物使用合理性,显示设计者细致入微的生活观察能力和纯熟的设计应用能力。
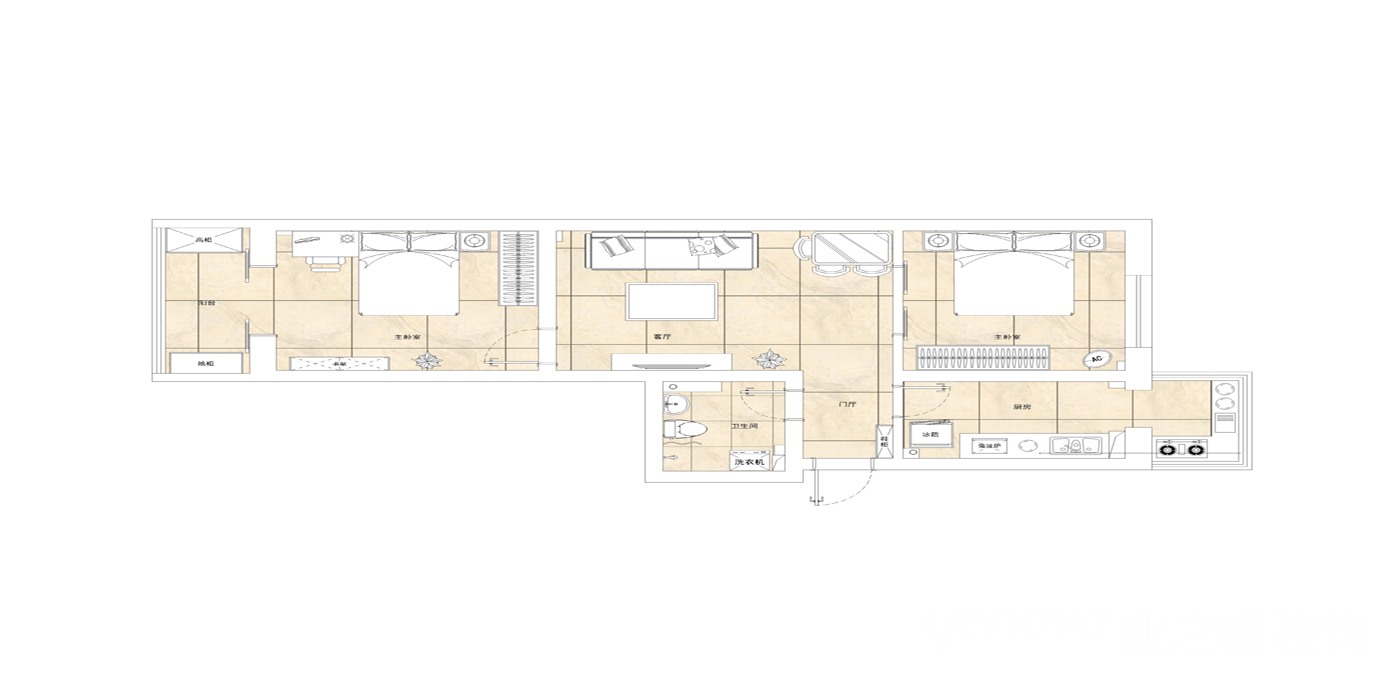
户型图

卧室


餐厅

客厅







京公安网备11010502040911