156㎡三居现代简约风格华侨城
发布时间:
2017年04月11日
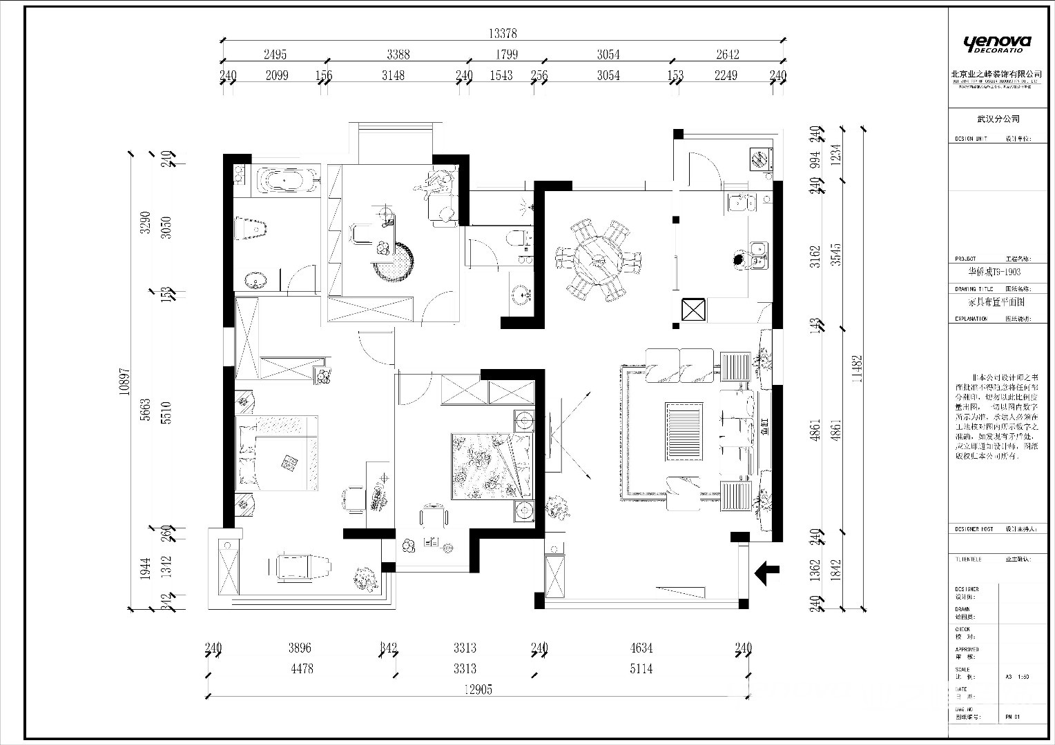
小区:华侨城 面积:156㎡ 户型:三居 风格:现代简约风格
设计说明
该户型为156平米,本室案设计风格为现代风格,现代风格强调突破旧传统,重视功能和空间组织,注意发挥结构构成本身的形式美,造型简洁,反对多余装饰,崇尚合理的构成工艺,尊重材料的性能,讲究材料自身的质地和色彩的配置效果。
业主为新婚夫妻。在与设计师沟通倾向于现代装修风格,因此与设计师达成现代的装修方向。
在第一次与业主沟通时,业主明确要求设计师保留两个房间,一个独立的主卧卫生间。主卧在突破传统的格局摆放手法上在电视柜侧边增加了写字桌,让整个空间格局更加明确、清晰。在进入主卫的基础上增加了一个衣帽
客厅










京公安网备11010502040911