120㎡三居简欧风格金色港湾
发布时间:
2017年04月11日
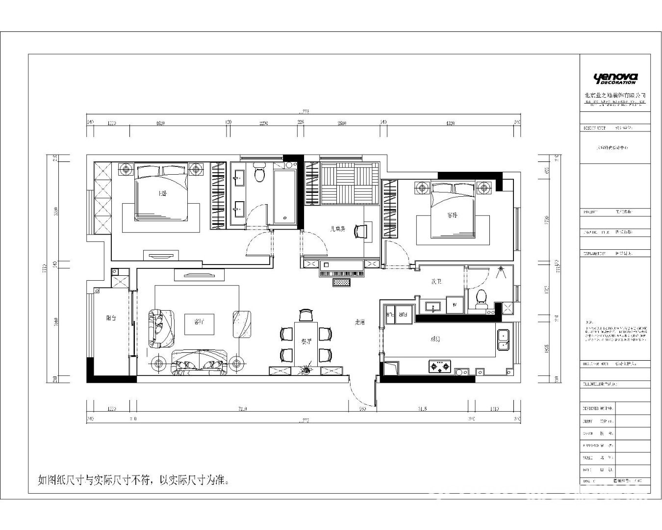
小区:金色港湾 面积:120㎡ 户型:三居 风格:简欧风格
设计说明
本方案的设计风格为简约欧式的设计风格,为了营造典雅,自然,高贵的气质,温馨,浪漫的情调是本方案的主题。简约,质朴的设计风格是众多人群所爱的,生活在繁杂多变的世界里已是烦扰不休。而简单,自然,温馨的生活空间却能让人身心舒畅,感到宁静和安逸籍着室内空间的结构和重组,便可以满足我们对悠然自得的生活向往和追求,让我们在纷扰的现实生活中找到平衡,缔造出一种令人心驰神往的写意空间。
简欧风格,既有欧式设计风格的一些元素,有充分的利用了现代
简约设计的某些优势。这种折中的风格,正成为一种新的流行。简欧风格的室内设计打破以往的欧式深沉的色彩,以浅色为主。本方案中大量的使用了以浅色为主以暖色为辅。来凸显出简约,质朴,温馨,浪漫。也跟符合人们的审美观念。
户型图

客厅








京公安网备11010502040911