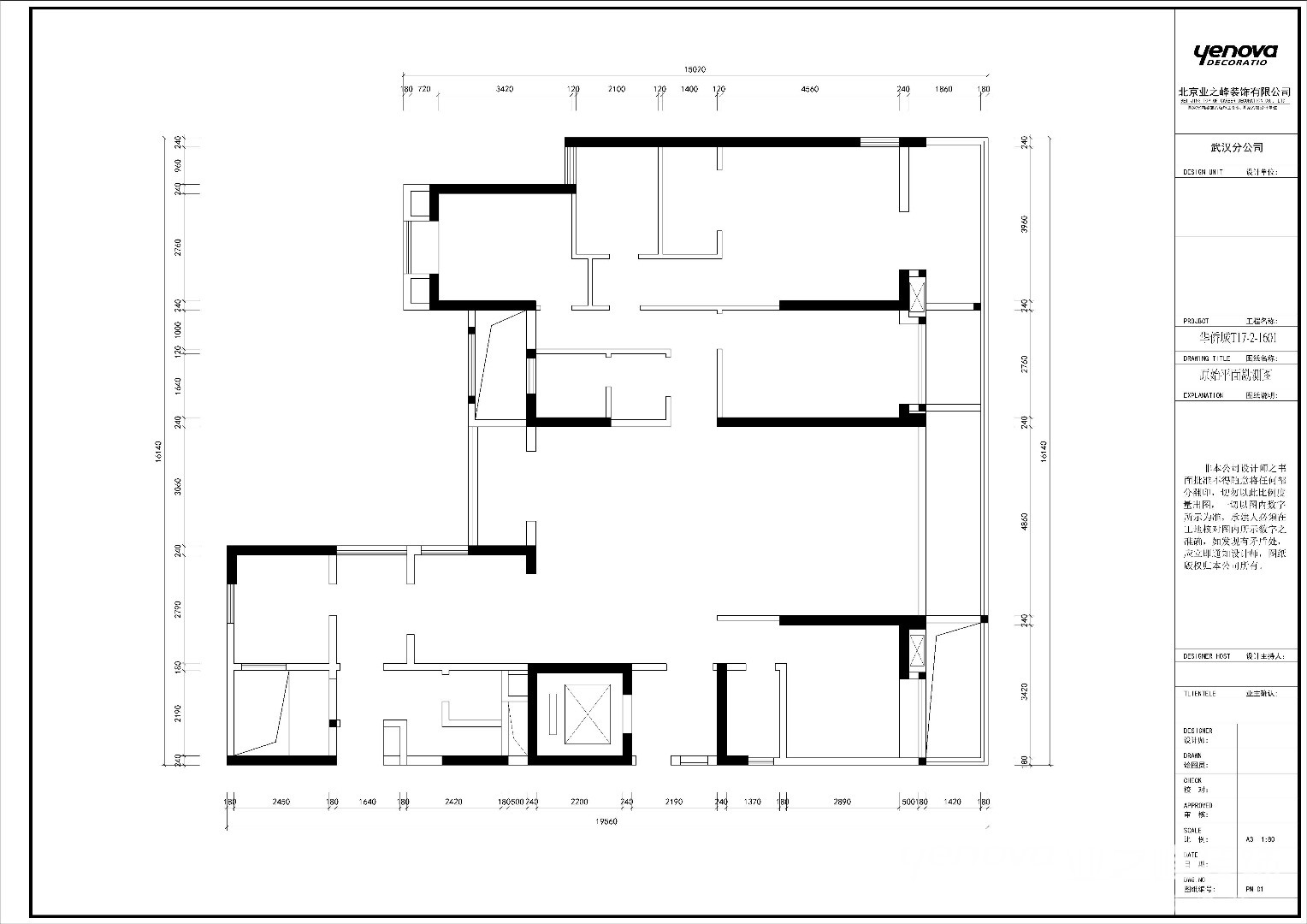
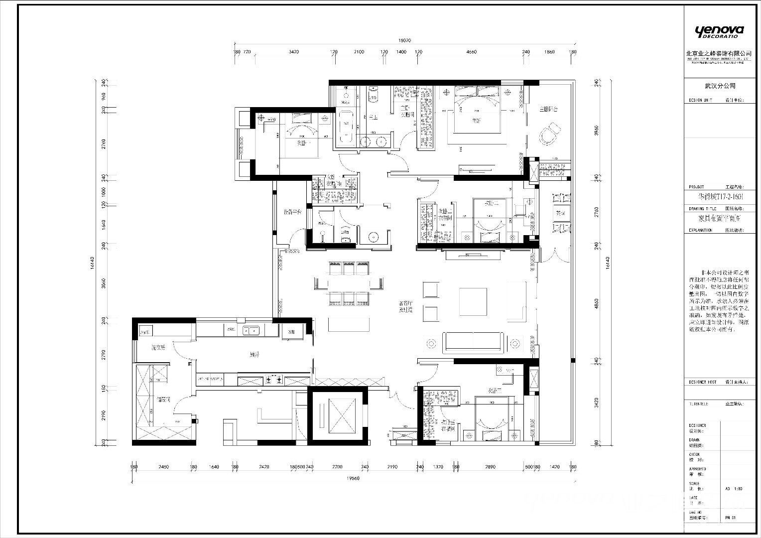
230㎡四居欧式风格华侨城
该户型为230平米,本室案设计风格为欧式风格,通过完美的曲线,精益求精的细节处理,带给家人不尽的舒服触感。
业主为普通家庭,家有两个小孩。第一次与设计师沟通时提出对房子使用的功能要求。需要四间卧室,主卧室需求套间,包含衣帽间,主卫需要浴缸。主卧应客户的要求使用了传统的摆放手法,设计了衣帽间及主卫,将阳台在原有基础上设置为休闲阳台,让业主感受生活。次卧在设计上增加了衣帽间区域,增加储物空间。储物间及洗衣房的设计使空间规划更完整。
第二次沟通时,设计师提出了自己的想法与业主进行深入的探讨,并在沟通的过程中进行了一些变动。设计师再同时也提供了一些参考的图片来供客户选择,在沟通的过程中确定了欧式风格与最终方案。
本案在尽量不动原始结构上进行设计,划分出各个功能区域,功能利用完全。增加空间的活动性,灵活性以及提高业主生活的品质,舒适度









京公安网备11010502040911