200㎡五居美式风格银泰御华园
发布时间:
2017年04月11日
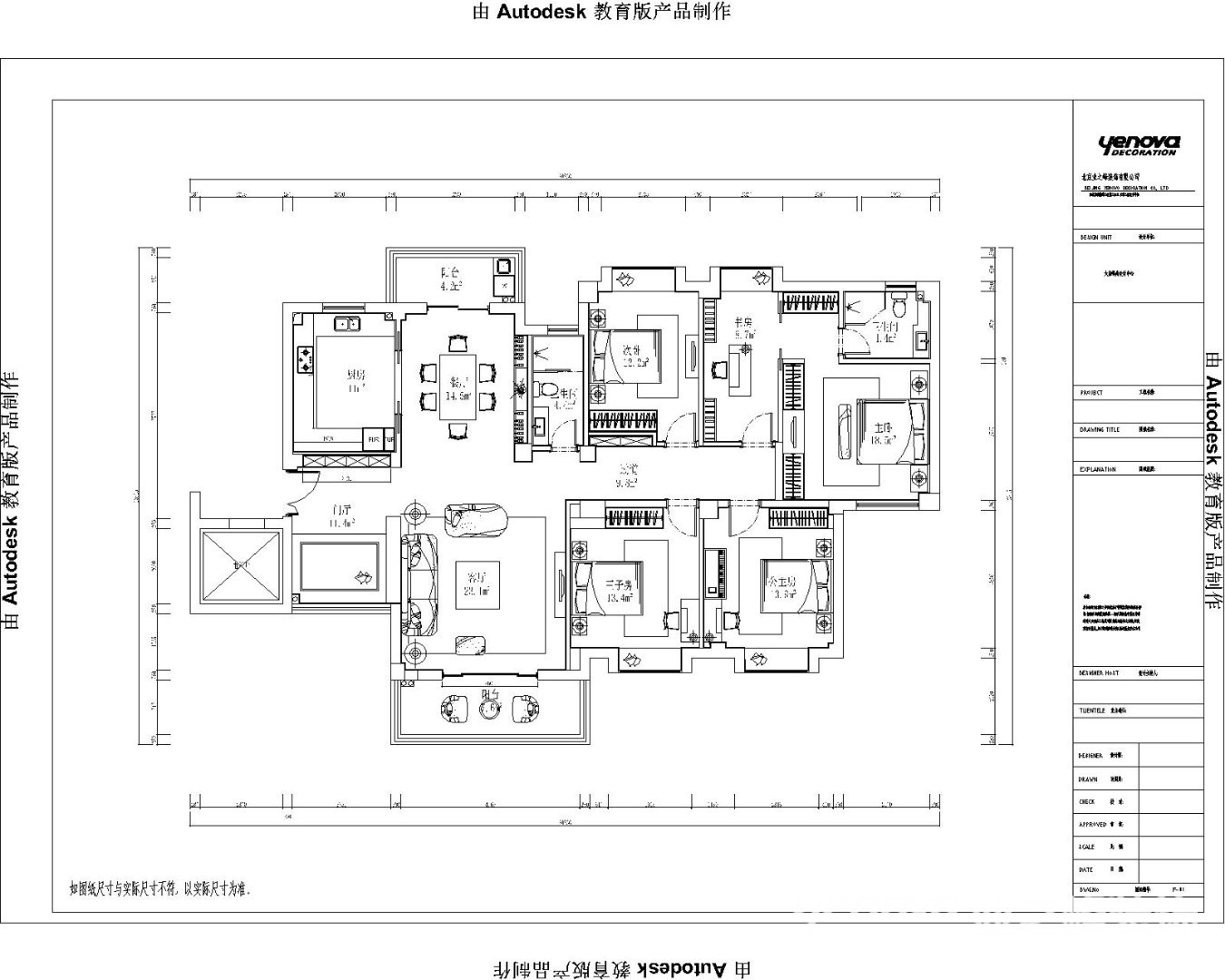
小区:银泰御华园 面积:200㎡ 户型:五居 风格:美式风格
设计说明
本案是三口之家,女主人喜欢美式古典的尊贵,粗狂洋气。对深色有蕴味的家具情有独钟。所以在风格上建议把美式的古典结合现代简约的特点来构建这个家。颜色上深浅的搭配,层次分明,相得益彰。在功能设计上多考虑了家人的生活习惯与爱好,儿童自小就有钢琴的爱好,而且喜欢有一个属于自己的城堡的高低床。可能偶尔父母来住下,所以门口的房间改成了多功能房,增加了收纳的同时也解决了功能的变化。
户型图

客厅













京公安网备11010502040911