98㎡二居现代简约风格卓达玫瑰园
发布时间:
2017年04月08日
小区:卓达玫瑰园 面积:98㎡ 户型:二居 风格:现代简约风格
设计说明
本案设计为欧式风格。欧式风格营造典雅、自然、高贵的气质、浪漫的情调是本案的主题。简约、质朴的设计风格是众多人群所喜爱的,生活在繁杂多变的城市已是烦恼不休,而简单自然的生活空间却能让人心情舒畅,缔造出一个令人心驰神往的写意空间。
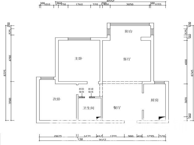
户型图

客厅










京公安网备11010502040911