130㎡四居新中式风格梧桐庄园
发布时间:
2017年03月29日
小区:梧桐庄园 面积:130㎡ 户型:四居 风格:新中式风格
设计说明
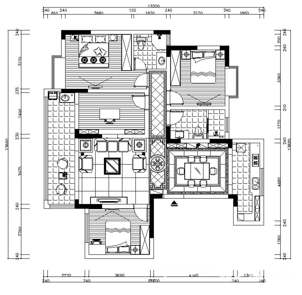
此案为梧桐庄园四房两厅的大户型,客户比较豪爽,整体空间以新中式为主,此户型比较方正规整,而且通风也比较好,所以客户要求无需墙体拆改,维持原结构。整体空间整洁明亮,大气不失沉稳。
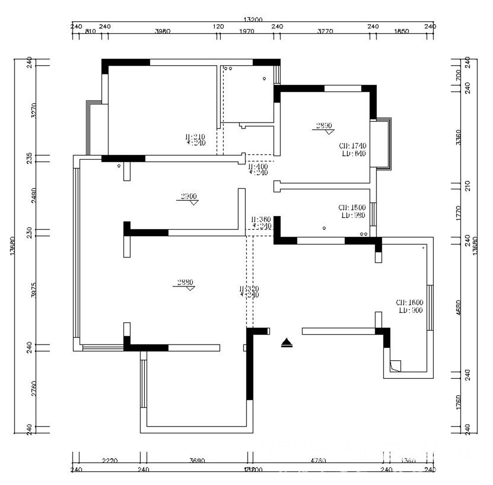
户型图

卧室

客厅



餐厅

此案为梧桐庄园四房两厅的大户型,客户比较豪爽,整体空间以新中式为主,此户型比较方正规整,而且通风也比较好,所以客户要求无需墙体拆改,维持原结构。整体空间整洁明亮,大气不失沉稳。





