94㎡二居现代简约风格奥克斯
发布时间:
2017年03月29日
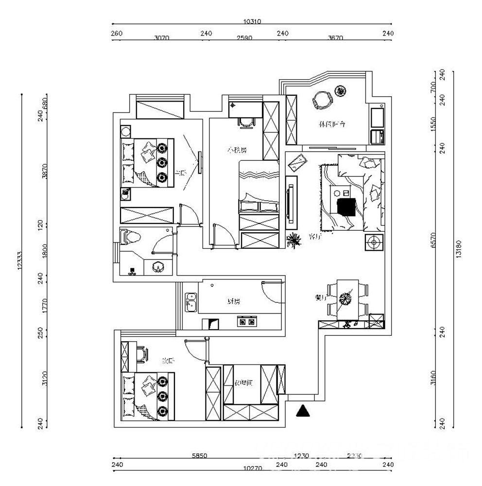
小区:奥克斯 面积:94㎡ 户型:二居 风格:现代简约风格
设计说明
此户型为奥克斯的三房两厅,户型为框架结构,业主要求空间安排上要合理应用。业主预设主体风格倾向于简欧风格,原户型不是很通透,次卧空间属于二次采光,格局上比较规矩,所以在户型上改动不大。整体比较简洁明亮。
户型图

客厅



书房

卧室

儿童房





京公安网备11010502040911