138㎡四居现代简约风格东方米兰国际城
发布时间:
2017年02月24日
小区:东方米兰国际城 面积:138㎡ 户型:四居 风格:现代简约风格
设计说明
业主是一对年轻夫妻,喜欢现代简约,比较有格调的感觉。追求简单+节约的结合。沙发背景墙用壁画加以点缀。棉麻材质的布艺饰品运用居多,除了保留正常的功能区域外还留有父母房,客厅及餐厅需一体化,使得空间功能得到最大化利用。
本案采用现代简约的风格,它是经过深思熟虑简约不等于简单。以简洁的表现形式来满足人们对空间环境的那种感性、本能的和理性的要求—简洁明快的简约主义。而现代人的快节奏、高频率。人们在这日趋繁忙的生活中,渴望得到一种彻底轻松、以简洁和纯净来调节转换精神的空间,这是人们在互补意识的支配下追求简单自然的心理。
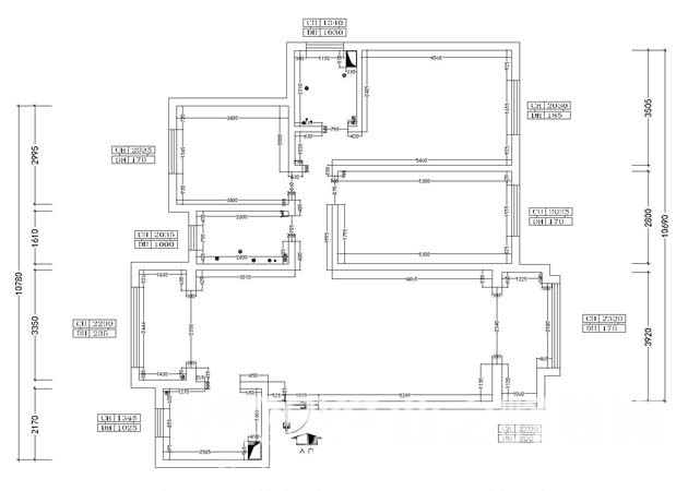
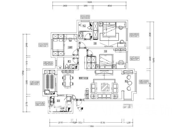
户型图

客厅



卧室

餐厅





京公安网备11010502040911