124㎡三居香悦澜山
发布时间:
2017年02月23日
小区:香悦澜山 面积:124㎡ 户型:三居 风格:
设计说明
本案以质朴的美式美学上推崇在居室的空间的处理上,力求表现自然轻松的情趣,设计上讲求色彩关系,注重大小色块间的组合,地域性的后期配饰融入设计风格之中,给疲惫的身心提供轻松自由舒适的居室环境。
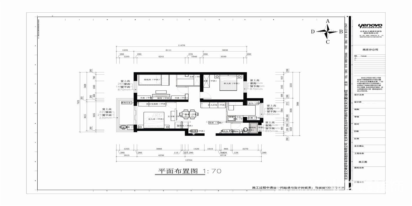
户型图

客厅






本案以质朴的美式美学上推崇在居室的空间的处理上,力求表现自然轻松的情趣,设计上讲求色彩关系,注重大小色块间的组合,地域性的后期配饰融入设计风格之中,给疲惫的身心提供轻松自由舒适的居室环境。






