136㎡三居简欧风格永和璞玉
发布时间:
2017年02月23日
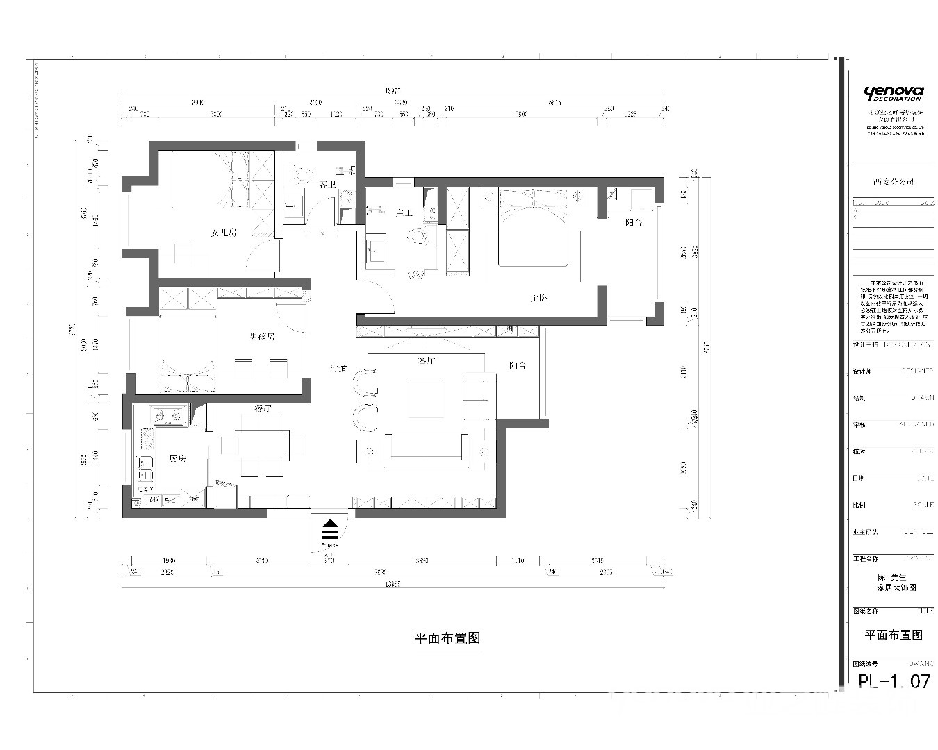
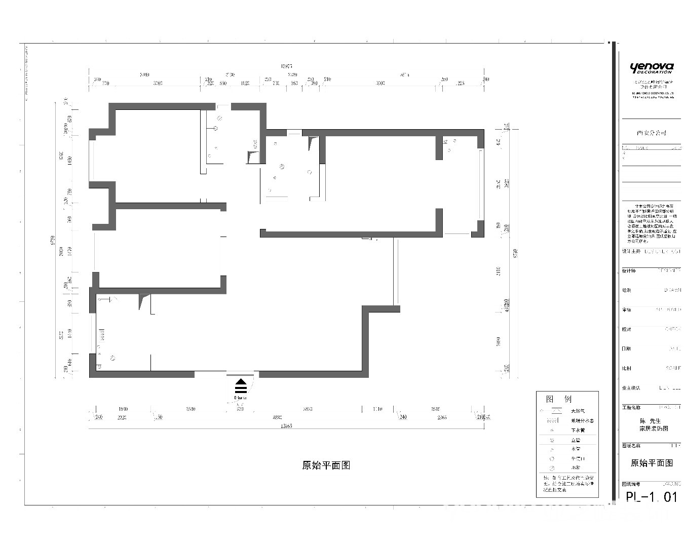
小区:永和璞玉 面积:136㎡ 户型:三居 风格:简欧风格
设计说明
现代社会工作生活中的各种忙碌带给人过多压力与紧张感,人们所需要的正是这一份静谧以及这一份零距离的舒适,不那么浮华也不矫揉造作却依然保留着简欧装饰的那份惬意和浪漫。
在家饰及色彩搭配上,贯彻着现代的简欧风格,舍弃过于繁重的简欧装潢,简约而不简单。解放了造型,扩展空间及视觉感。整体色调以清雅的白、素净的米黄以及自然木色为主,空间充满生命力,张扬又不失尊贵典雅和品质感。
户型图

客厅




餐厅





京公安网备11010502040911