北京
【切换】
整屋案例
家居美图
实景案例
装修现场
装修攻略
无数据
搜索
010-84934479
扫码快速拨号 >
扫码快速拨号
首页
效果图
设计师
装修现场
装修攻略
品质保障
了解业之峰
当前位置:
首页
装修图库
案例相册
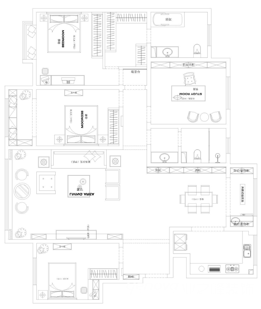
200㎡四居新中式风格西蒋峪
发布时间: 2017年02月17日
小区:西蒋峪
面积:200㎡
户型:四居
风格:新中式风格
设计说明
户型图
餐厅
客厅
卧室
玄关
卫生间
设计说明
户型图
餐厅
客厅
卧室
玄关
卫生间
本案设计师
赵倩
主任设计师
免费咨询
我家装成这样多少钱?
㎡
获取报价
相关案例推荐
140㎡四居新中式风格泰林·黄河馨苑
查看详情
168㎡四居新中式风格吾悦首府
查看详情
143㎡四居新中式风格南山两河峯景
查看详情
270㎡四居新中式风格唐城壹零壹
查看详情
166㎡四居新中式风格富豪花园
查看详情
200㎡四居新中式风格三江花园
查看详情
138㎡四居新中式风格井上华府
查看详情
180㎡四居新中式风格大华公园世家
查看详情
195㎡四居新中式风格中海天赋岭
查看详情
125㎡四居新中式风格天房樾梅江
查看详情
208㎡四居新中式风格江胜天鹅湖
查看详情
160㎡四居新中式风格润兰之城
查看详情
188㎡四居新中式风格至诚·枫叶国际
查看详情
175㎡四居新中式风格中海寰宇天下
查看详情
143㎡四居新中式风格保利中央公园
查看详情
161㎡四居新中式风格天朗大兴郡
查看详情
266㎡四居新中式风格华侨城望涛苑
查看详情
170㎡四居新中式风格水果湖广场
查看详情
140㎡四居新中式风格尚玉园玺苑
查看详情
182㎡四居新中式风格观悦府
查看详情
展开
报价计算器
免费量房
免费设计
回到顶部