135㎡三居现代简约风格华润二十四城
发布时间:
2016年12月27日
小区:华润二十四城 面积:135㎡ 户型:三居 风格:现代简约风格
设计说明
美的家居环境。重点是家具的精心摆放和选择陈设品,简化室内的装饰要素,可以
使人的眼睛自由游荡,空间本身就是一个视觉放松的地方,让空间中的重点富有活
力,除提供仅有的必需用品外,不在放置其它东西,设计的本质是使房间的气氛和
主人的生活更加自由。
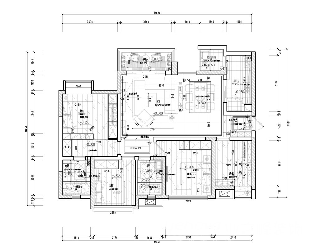
户型图

厨房

客厅


卫生间





京公安网备11010502040911