300㎡五居现代简约风格华润二十四城
发布时间:
2016年12月27日
小区:华润二十四城 面积:300㎡ 户型:五居 风格:现代简约风格
设计说明
“禅--素净”展现出一种肃静、纯粹的空间感,抛弃许多过分的造型堆砌,和思想上的杂念,通过一些简约的木制构件和陈设、纯粹色彩的表达,以追求一种内心的纯净和禅意。在一些细节上适当采用一些柔性色彩,以及偏女性化的布置,在素净空间里体现出家的感觉,将东方禅意巧妙融合到家庭生活之中,表现出一种独特的龙的传人的生活品味。
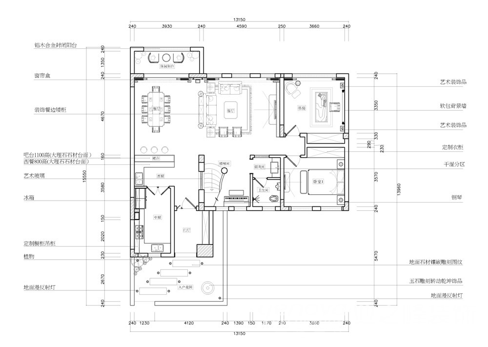
户型图

客厅



卫生间

卧室





京公安网备11010502040911