113㎡三居现代简约风格商城凤凰印象
发布时间:
2016年11月04日
小区:商城凤凰印象 面积:113㎡ 户型:三居 风格:现代简约风格
设计说明
联系方式:0791-86296016
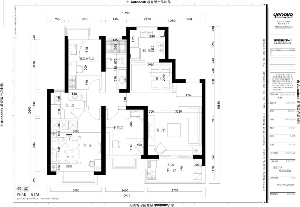
本户型在红谷滩凤凰洲,交通便利,夫妇俩都从事医护事业!平时都比较忙,希望家是简单的,有色彩的,舒适度高的地方,打算生二胎,所以在房间上考虑三房,小孩的书桌学习区。平面设计中把主卫改造成大大的衣帽间,满足女主人的衣帽储物需求。整体设计以现代风格为主调,添加时尚,纹理,舒适木板,温馨色彩融合一起,给予客户一个幸福快乐的家。
户型图

客厅



卫生间

卧室





京公安网备11010502040911