174㎡复式现代简约风格万科四季花城
发布时间:
2016年11月04日
小区:万科四季花城 面积:174㎡ 户型:复式 风格:现代简约风格
设计说明
联系方式:0791-86296016
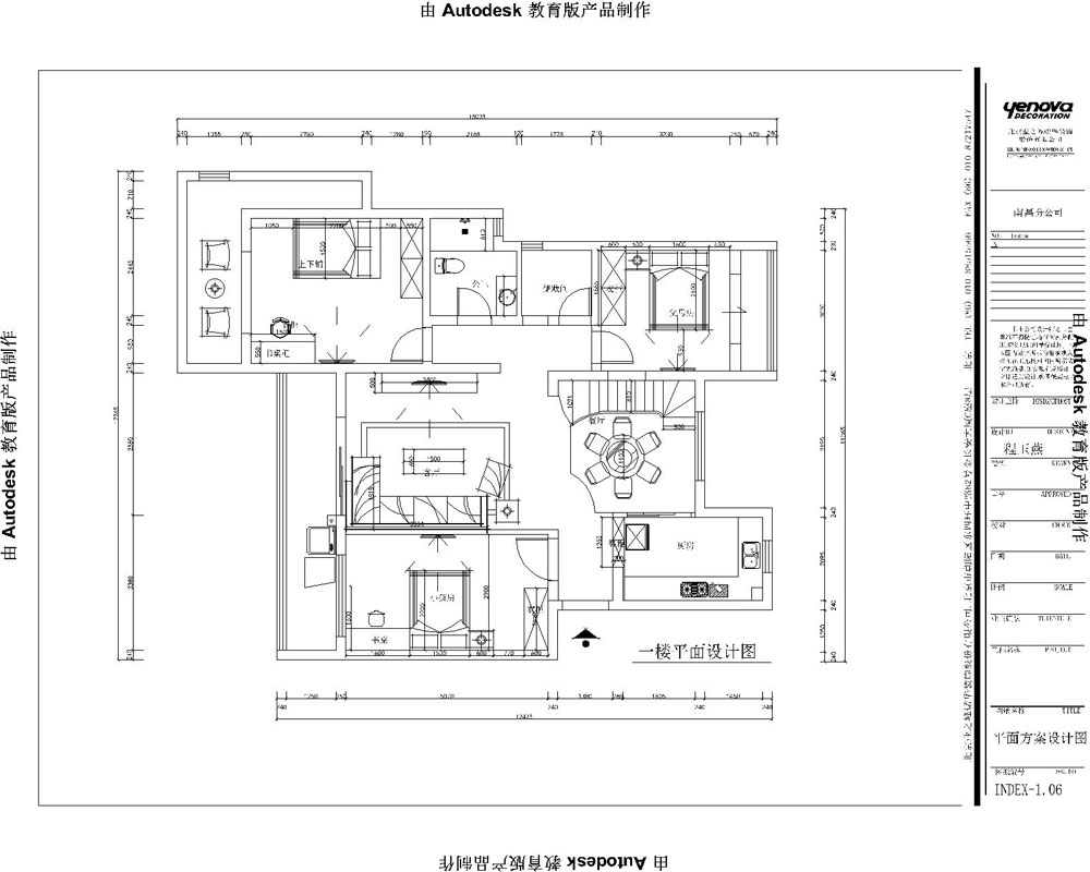
此案客户一对中青年夫妇,一对公主,一对老人。客户要求简约,明亮,满足六口之家常驻需求,因此对住房和功能要求4间独立房间。男主是一位从事农副产品调研工作,女主则从事知识产权管理,都需要自己独立的办公空间。因此改造原有二楼架空区域作为主卧房,原有二楼的休息区改造成衣帽间,增加书房和休闲房。二楼的整个空间都属于两夫妇的休息,工作,娱乐为一体的生活。原本二楼矮房空间改造成楼梯区,把原本毫无利用价值的区域改变成二楼楼梯过道和一楼餐厅。同时也解决空间原本不通透的问题。而原本二楼最大的露台仍然从楼道通往,满足一家子的娱乐休闲需求。
家具配色采用暖色墙面和冷色暖配做搭配,符合男性女性客户的共同要求。避免色彩过多的同时也增加空间的活泼度。享受慢节奏的生活。
户型图

客厅



卧室

厨房

餐厅





京公安网备11010502040911