90㎡二居现代简约风格福特纳湾
                  发布时间:
                  2016年09月11日
                
 小区:福特纳湾 面积:90㎡ 户型:二居 风格:现代简约风格
设计说明
 整个设计的方案,是一个现代风格。单边直线吊顶搭配石材和黑色烤漆玻璃共同形成影视墙。餐桌墙面选用暖色乳胶漆,搭配带灯槽的防水石膏板造型,浑然天成。床头背景墙采用软包,地板上墙。
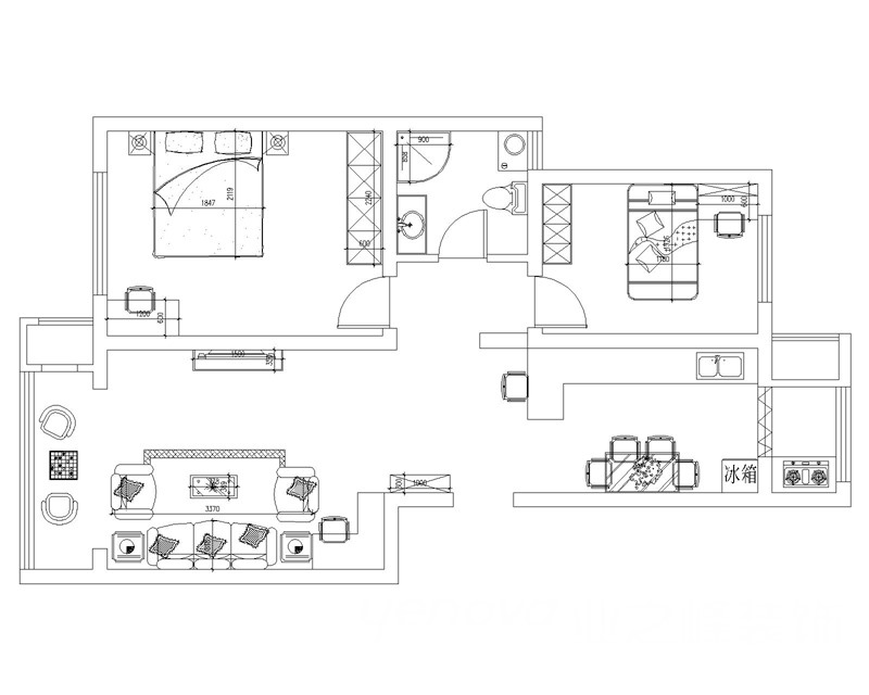
户型图
 
厨房
 
卧室
 
客厅
 


餐厅
 
整个设计的方案,是一个现代风格。单边直线吊顶搭配石材和黑色烤漆玻璃共同形成影视墙。餐桌墙面选用暖色乳胶漆,搭配带灯槽的防水石膏板造型,浑然天成。床头背景墙采用软包,地板上墙。






