108㎡二居现代简约风格天海誉天下
发布时间:
2016年07月08日
小区:天海誉天下 面积:108㎡ 户型:二居 风格:现代简约风格
设计说明
活是一种心态,当简单成为一种完美,时尚成为一种节奏,生活便开始优雅,外界的纷扰,世俗的喧闹,如此微不足道,只简简单单矗立在那。深色系与浅色系的完美融合,诠释了时尚与经典的完美结合,淡淡的优雅和柔和的感觉油然而生。
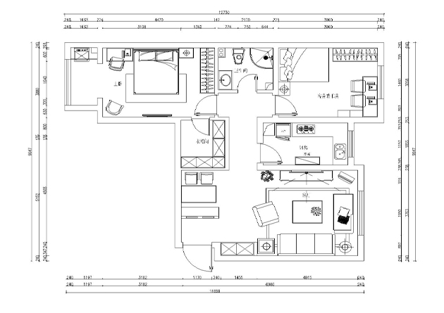
户型图

客厅




卧室


餐厅





京公安网备11010502040911