158㎡三居现代简约风格建投十号院
发布时间:
2016年07月07日
小区:建投十号院 面积:158㎡ 户型:三居 风格:现代简约风格
设计说明
采用几何素色壁纸打底,外饰装饰置物架,即简单又使用,有起到装饰效果!浅灰色的布艺沙发上面点缀上亮色的抱枕,点点的色彩打破了灰的宁静!
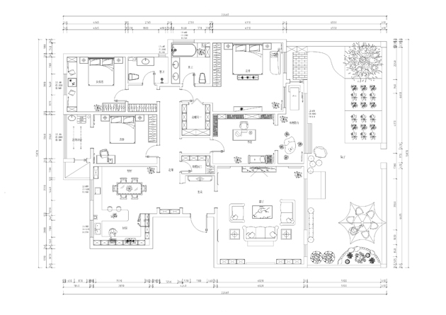
户型图

阳台

卧室


客厅



玄关

餐厅

采用几何素色壁纸打底,外饰装饰置物架,即简单又使用,有起到装饰效果!浅灰色的布艺沙发上面点缀上亮色的抱枕,点点的色彩打破了灰的宁静!








