380㎡别墅简欧风格重汽莱蒙湖
发布时间:
2016年07月07日
小区:重汽莱蒙湖 面积:380㎡ 户型:别墅 风格:简欧风格
设计说明
简约欧式风格沿袭古典欧式风格的主元素,融入了现代的生活元素。欧式的居室有的不只是豪华大气,更多的是惬意和浪漫。通过完美的典线,精益求精的细节处理,带给家人不尽的舒服触感,实际上和谐是欧式风格的最高境界。
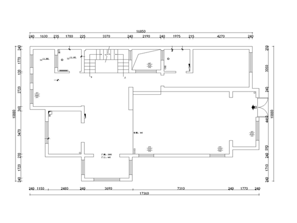
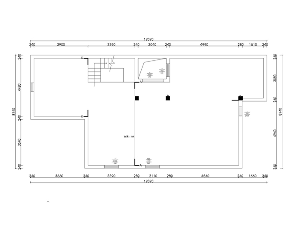
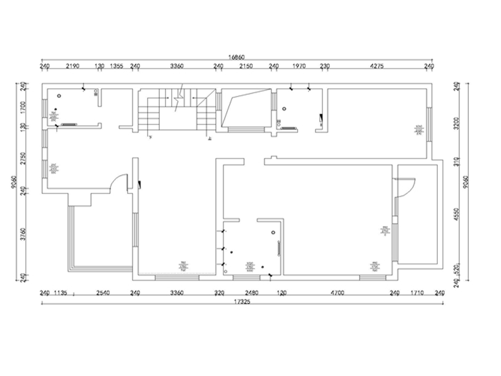
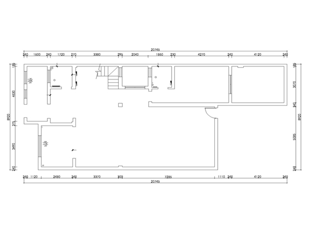
户型图

客厅










玄关

楼梯




卧室








书房

儿童房

餐厅






京公安网备11010502040911