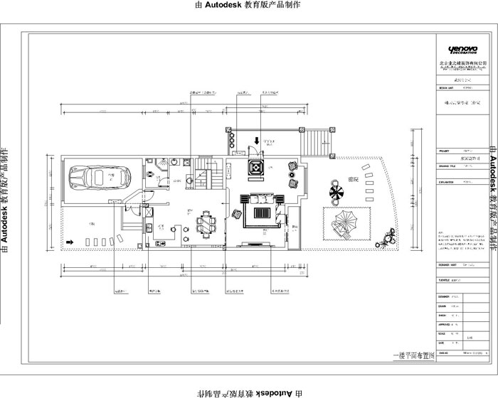
280㎡平层现代简约风格太湖一号
发布时间:
2011年10月10日
小区:太湖一号 面积:280㎡ 户型:平层 风格:现代简约风格
设计说明
生活有了高度,自然让人仰慕!
此套别墅从从材料入手,充分体现了居室的高贵,典雅,舒适,自然。才入大门,别致的玄关屏风令人眼前一亮,精致的餐桌椅,窗旁的布帘静静的靠在客厅墙角,优雅至极,不禁令人由衷感叹:原来生活可以这样完美!
客厅





此套别墅从从材料入手,充分体现了居室的高贵,典雅,舒适,自然。才入大门,别致的玄关屏风令人眼前一亮,精致的餐桌椅,窗旁的布帘静静的靠在客厅墙角,优雅至极,不禁令人由衷感叹:原来生活可以这样完美!




