78㎡二居现代简约风格同馨家园
发布时间:
2014年07月17日
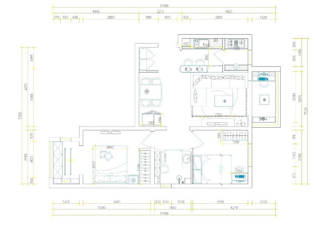
小区:同馨家园 面积:78㎡ 户型:二居 风格:现代简约风格
设计说明
本案定位简约风格又添加时尚的感觉,材质采用皮面软包加壁纸配饰简约家居浅色调,让小的空间看起来更加精致。
将厨房分为中式厨房和西式厨房,使餐厅客厅内容更加丰富,采用黑色烤漆玻璃和白色烤漆橱柜凸显本案风格。门口处单独划分出门厅独立空间保留一点餐厅的隐私性。
卧室是让人舒服,更加惬意的空间,在生活阳台功能保留情况下,增加一组飘窗矮柜,成为一个休闲区。同时增加储物功能。儿童房,墙面采用可净化空气的硅藻泥材质,采用淡蓝色是空间变得梦的感觉。顶面的石膏板星星灯,起到点缀的效果。
采用法兰西木纹纹理瓷砖横铺显现空间感较大,搭配黑色烤漆的浴室柜,洗衣机上面不浪费空间做一组吊柜,增加储物空间。
客厅


卧室

儿童房

餐厅





京公安网备11010502040911