150㎡二居现代简约风格兰大家属院
发布时间:
2014年08月10日
小区:兰大家属院 面积:150㎡ 户型:二居 风格:现代简约风格
设计说明
简约风格虽然不像欧式风格那么豪华,也没有古典风格那么的典雅,但是它的简约大方是吸引人们的特点,什么时候都不会过时。
顾名思义,就是让所有的细节看上去都是非常简洁的。装修中的极简便是让空间看上去非常简洁,大气。
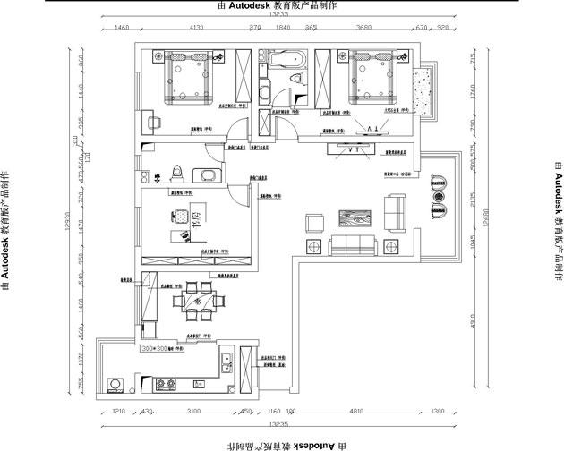
户型图

客厅



书房

卧室

餐厅





京公安网备11010502040911