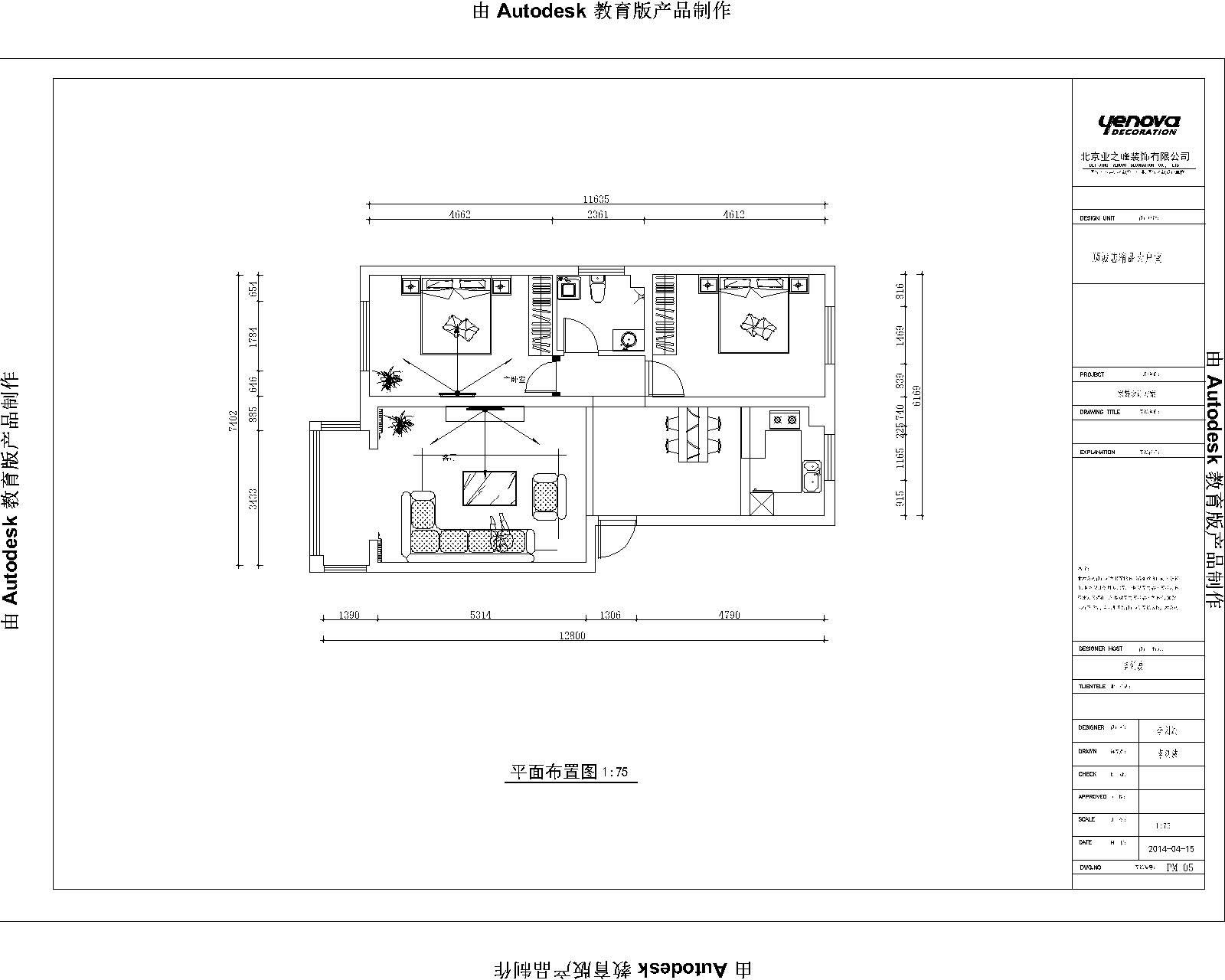
110㎡二居现代简约风格御龙瀚府
发布时间:
2014年09月19日
小区:御龙瀚府 面积:110㎡ 户型:二居 风格:现代简约风格
设计说明
现代风格特点:外形简洁,主张从功能观点出发,着重发挥形式美,强调室内空间形态的单一性、抽象性,多采用最新工艺与科技生产的材料与家具。它突出的特点是简洁、实用、美观,兼具个性化。现代风格不仅注重居室的实用性,而且还体现出了工业化社会生活的精致与个性,符合现代人的生活品位。
客厅






餐厅






京公安网备11010502040911