138㎡三居现代简约风格中山华府
发布时间:
2015年08月12日
小区:中山华府 面积:138㎡ 户型:三居 风格:现代简约风格
设计说明
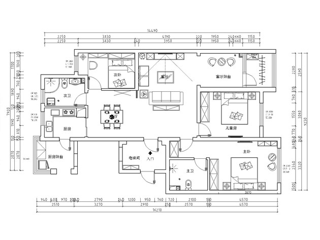
此案为三室两厅户型,138平米,本设计的突出重点在客厅阳台,阳台面积较大,是一个赏花观景的最佳场所。客厅和门厅没有相对独立的区域,通过回字形灯池吊顶把两个区域划分明确。书房的门向南移动,加大了餐厅的利用空间。整体风格为现代简约风格,白色布艺的沙发使得整个空间更加轻快明亮。
户型图

客厅



卧室


阳台

餐厅





京公安网备11010502040911