138㎡三居美式风格中山华府
发布时间:
2015年08月12日
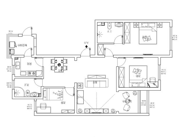
小区:中山华府 面积:138㎡ 户型:三居 风格:美式风格
设计说明
此案为三室二厅二卫户型,138平米。客厅和餐厅都有相对独立的区域,而且空间尺寸布局合理。本设计重点改动是在通过吊顶把空间划分为客厅和门厅两个区域,客厅墙面线条简单,简化了欧式风格,让线条更加的流畅,也让气氛更贴近自然。不论是硬朗流畅的线条,还是简单舒适的家具亦或是那些简约的现代感,都让家装变得优雅高贵,采光良好。从简单到复杂,从颜色到质感都采用性价比最高的,所以简欧风格多了一些实用的装饰。注重空间的合理规划,也注重典雅高贵的体现。带着一丝小资情调,让生活充满了情趣。
户型图

客厅





阳台

卧室





京公安网备11010502040911