218㎡平层现代简约风格中粮祥云
发布时间:
2015年11月08日
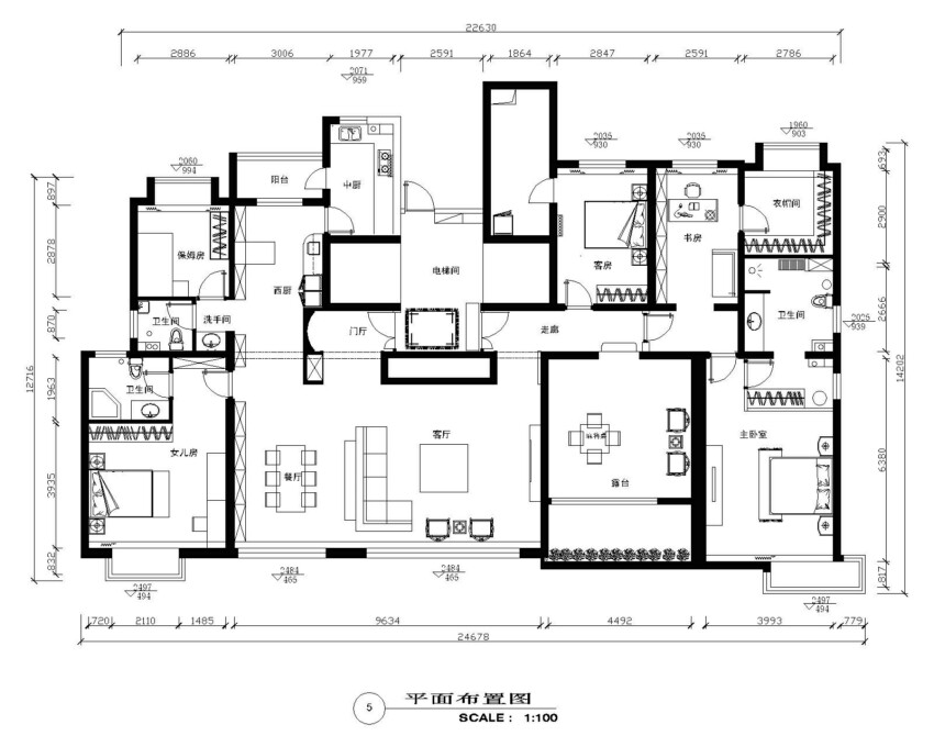
小区:中粮祥云 面积:218㎡ 户型:平层 风格:现代简约风格
设计说明
在本案的设计中我们将黑与白、白与灰、木与石材、石材与棉麻、棉麻与黑木、装饰与灯光结合在一起营造出简约、低调、轻奢的空间氛围。
本案客厅比较大,在设计中,我们把客厅与餐厅放在一起,中间用爵士白大理石做玄关隔开,而电视背景墙也是用爵士白大理石做装饰,与沙发后大理石隔断相呼应,从客厅望餐厅,视觉开阔,造型,色彩,元素延伸至餐厅,显得更为一体,不仅增加了视觉享受又显得端庄大气。
在餐厅的北方,是西餐厨房与中餐厨房,考虑到中餐油烟较大,所以中餐厨房放在了里面,有门隔开,在设计上延续了公共空间的手法,深色与浅色的对比,呼应整个空间的设计效果。而西餐厨房完全开放,有不可少的吧台,酒柜,与餐厅相呼应,不仅做饭方便,而且增加的美观性。
整个空间里,无论是墙纸的颜色,还是家私软装的搭配,都控制在一个色系里黑与灰的搭配,灰与白的对比,配上盆栽的绿植,通透明亮,简约舒适。而墙面没有太多的墙面造型,也没有太繁杂的装饰,就几种颜色与材质的搭配,使得整个空间更加质感,有温度。
客厅





餐厅





京公安网备11010502040911