572㎡别墅其他翡翠城
发布时间:
2015年11月08日
小区:翡翠城 面积:572㎡ 户型:别墅 风格:其他
设计说明
欧式线条加上舒适宽敞的家具,将浅色和重色调的结合,凸显房间的别致!
这套方案是业主在济南买的一套别墅,用作平时两地工作时用度,两人有一个1周岁大的宝宝,以后妻子和孩子要在济南生活,所以业主两个人因家庭和工作原因,时间都都不是很多,所以尽量吧房屋设计的要轻松和有温馨感,两人喜欢住的房子空间上和利用率上大一点,(也是这次方案主题风格定位特殊性的原因 简欧)在整体设计上,采用了以暖白色为主配上淡黄色的基本色,深色系做为辅助色调的手法,使整个空间在原有的格局上显得不那么单一又不会又太大的跳跃性,也能彰显年轻人热爱自由和温馨的一面。吊顶的造型除了营造欧式的风格以外,更增加了房间的一个整体空间感,使房间显的更高局部的圆弧处理也使的整个空间更具有圆润性。
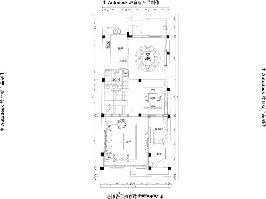
在格局和功能上,由于客厅的部分属于挑空的,所以在设计的时候,把过道与客厅通过宽条的石膏线搭配方式,用来取得整个空间的协调性。同时也区分了客厅的挑空区域空间(一层二层的区分)。主卧室在满足业主正常生活居住的前提下,把原有墙体进行了拆除。保留了衣柜和床的正常空间外,向外推出50公分。即满足了业主在卧室的正常需求,也满足了空间和功能性。
欧式风格给人的浓浓温馨感,暖色的色调永远会给人一种家的温馨!只要会有总会有别致!
客厅













书房

卧室



儿童房

餐厅






京公安网备11010502040911