220㎡四居新中式风格开元府
发布时间:
2016年02月24日
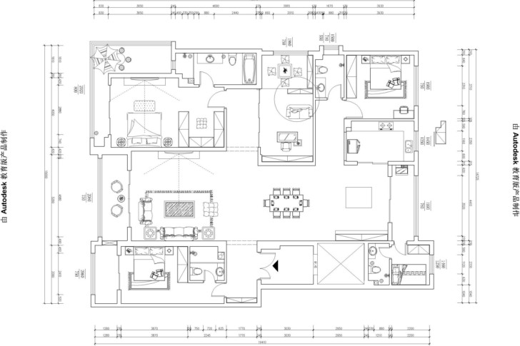
小区:开元府 面积:220㎡ 户型:四居 风格:新中式风格
设计说明
美式乡村风格,是美国西部乡村的生活方式演变到今日的一种形式,它在古典中带有一点随意,摒弃了过多的繁琐与奢华,兼具古典主义的优美造型与新古典主义的功能配备,既简洁明快,又温暖舒适。
美式家具将许多欧洲贵族的家具平民化,有着简化的线条、粗犷的体积、自然的材质,较为含蓄保守的色彩及造型。但它以舒适为设计准则,每一件都透着阳光、青草、露珠的自然味道,仿佛随手拈来,毫不矫情。有着抽象植物图案的清淡优雅的布艺点缀在美式风格的家具当中,营造出闲散与自在,温情与柔软的氛围,给人一个真正温暖的家。
户型图

客厅




厨房

玄关

餐厅





京公安网备11010502040911